Декларация на право собственности гаража
Содержание
- Что такое декларация на право собственности гаража?
- Значение гаража в современном обществе
- Какова роль декларации на право собственности гаража?
- Как получить декларацию на право собственности гаража?
- Процесс составления декларации на право собственности гаража
- Какие данные должны быть указаны в декларации на право собственности гаража?
- Что делать, если декларация на право собственности гаража утеряна?
- Документы, необходимые для получения декларации на право собственности гаража
- Какие права дает декларация на право собственности гаража?
- Вопрос-ответ:
- Какую информацию должна содержать декларация на право собственности гаража?
- Какова цель декларации на право собственности гаража?
- Можно ли изменить декларацию на право собственности гаража после ее оформления?
- Каким образом можно получить декларацию на право собственности гаража?
- Какие последствия могут наступить в случае неправильного оформления или отсутствия декларации на право собственности гаража?
- Что такое декларация на право собственности гаража?
- Как получить декларацию на право собственности гаража?
- Видео:
Декларация на право собственности гаража Гараж является одним из важных документов, которым обладает каждый владелец данного объекта недвижимости. Данная декларация содержит подробную информацию о правах и обязанностях собственника гаража, подтверждает его законные права на объект, а также устанавливает порядок использования данного помещения. Содержание декларации определяется законодательством Российской Федерации и региональными нормативными актами, которые регулируют собственность и владение гаражными помещениями.
В декларации указываются основные аспекты собственности на гараж, такие как: право собственности на земельный участок, на котором расположен гараж, право на само помещение гаража, право пользования общими частями и инженерными коммуникациями. Наличие данной декларации позволяет собственнику гаража быть уверенным в защите своих прав и имущества.
Одним из главных моментов, которые следует отметить в декларации, является право на использование помещения гаража. Собственник имеет право использовать данный объект исключительно в качестве гаража для хранения транспортных средств, а также выполнения других связанных с этим функций. Любое иное использование гаража, не указанное в декларации, может быть незаконным и нарушать права других собственников гаражей в данном жилом комплексе или микрорайоне.
Что такое декларация на право собственности гаража?
Декларация на право собственности гаража представляет собой официальный документ, который подтверждает факт наличия собственности на гараж, а также права владения этим объектом. Этот юридический документ выдается компетентным органом или учреждением и действует в качестве доказательства права собственности на гараж.
В декларации на право собственности гаража указываются такие важные сведения, как наименование органа или учреждения, выдавшего декларацию, данные о владельце гаража, его паспортные данные, описание объекта собственности и его адрес. Кроме того, указывается дата выдачи декларации и ее срок действия. Документ также может содержать сведения о возможности передачи прав собственности на гараж другому лицу и порядке такой передачи.
Декларация на право собственности гаража имеет юридическую силу и является важным документом для владельца гаража. Она может потребоваться при оформлении сделок с гаражом, таких как продажа, аренда или залог. Также декларация может быть необходима для получения кредита под залог гаража или при регистрации права собственности в государственных органах.
Получение декларации на право собственности гаража является важным юридическим шагом для владельца объекта недвижимости. Этот документ подтверждает законность его права на гараж и обеспечивает защиту интересов владельца. В случае если возникают споры или ситуации, связанные с гаражом, наличие декларации может иметь определяющее значение в разрешении конфликта.
Важно помнить:
Декларация на право собственности гаража не является самым основным юридическим документом, который подтверждает права на недвижимость. Она используется в качестве дополнительного документа, который расширяет права и обеспечивает дополнительные гарантии владельцу гаража. Поэтому важно сохранять ее в надежном месте и предоставлять при необходимости.
Декларация на право собственности гаража играет важную роль в законном владении и использовании гаража владельцем, обеспечивая ему дополнительные права и возможности.
Значение гаража в современном обществе
Защита автомобиля от неблагоприятных погодных условий
Одним из основных преимуществ гаража является защита автомобиля от различных неблагоприятных погодных условий, таких как дождь, снег, град или палящее солнце. Стабильная температура и отсутствие прямой солнечной радиации в гараже позволяют сохранять внешний вид автомобиля и предотвращают образование ржавчины или повреждения кузова.
Безопасность автомобиля и его содержимого
Гараж также обеспечивает безопасность автомобиля и его содержимого. Он защищает от кражи или вандализма, так как представляет собой закрытое помещение, защищенное дверью или воротами. В случае установки сигнализации или видеонаблюдения, уровень безопасности еще больше повышается.
| Преимущества гаража: |
|---|
| Защита автомобиля от неблагоприятных погодных условий |
| Безопасность автомобиля и его содержимого |
| Удобство в использовании |
| Создание комфортной рабочей зоны |
| Увеличение стоимости недвижимости |
Удобство в использовании – еще одно значимое преимущество гаража. Автовладельцы имеют возможность заехать в гараж сразу по приезду домой или выехать с утра, не дожидаясь оттаивания и чистки автомобиля. Кроме того, в гараже всегда можно спокойно выполнить технические работы самостоятельно или обратиться к специалистам без переживаний за погоду или возможность вмешательства посторонних.
Индивидуальный гараж – это также отличное место для создания комфортной рабочей зоны. Здесь можно хранить не только автомобильные инструменты, но и другие вещи, которые оказываются у автолюбителей постоянно под рукой.
Неоспоримый факт – наличие гаража существенно увеличивает стоимость недвижимости. При покупке или продаже жилья, потенциальные покупатели всегда оценивают возможность парковки автомобиля в комфортных и безопасных условиях. Поэтому вложение в гараж является долгосрочным и прибыльным решением.
Какова роль декларации на право собственности гаража?
Декларация на право собственности гаража играет важную роль при оформлении собственности на данный объект. Это официальный документ, который подтверждает право собственности на гараж и устанавливает его статус как имущества.
Роль декларации заключается в следующем:
- Защита прав собственника. Декларация служит доказательством в случае споров или конфликтов, связанных с собственностью на гараж. Она подтверждает, что собственник имеет законное право владеть, использовать и распоряжаться данным объектом.
- Оформление сделок. Декларация на право собственности гаража требуется при продаже, покупке или сдаче в аренду этого объекта. Без нее сделки могут быть незаконными или недействительными. Этот документ является основой для заключения правоустанавливающих договоров.
- Регистрация права собственности. Декларация на право собственности гаража является одним из документов, необходимых для регистрации права собственности в уполномоченном государственном органе. Без нее невозможно установить официальный статус гаража и его владельца.
- Доказательство факта владения. Декларация на право собственности гаража служит доказательством факта владения данным объектом. Она подтверждает, что гараж принадлежит определенному человеку и является его собственностью. Это особенно важно для документирования владения в случае правовых споров или проверок со стороны государственных органов.
В целом, декларация на право собственности гаража играет ключевую роль в установлении и защите прав собственника. Этот документ необходим для официального признания собственности на гараж и заключения правоустанавливающих сделок. Он служит гарантией прав собственника и способствует поддержанию порядка и законности в отношении данного объекта.
Как получить декларацию на право собственности гаража?
Для получения декларации на право собственности гаража необходимо выполнить следующие шаги:
- Собрать необходимые документы. Для этого вам понадобятся:
- паспорт собственника;
- документы, удостоверяющие право собственности на земельный участок, на котором расположен гараж;
- технический паспорт объекта недвижимости (гаража);
- документы о постановке на учет в органах ГИБДД (если есть).
- Обратиться в МФЦ (многофункциональный центр) или в органы регистрации недвижимости по месту жительства. При себе необходимо иметь все собранные документы.
- Подать заявление о выдаче декларации на право собственности гаража. Заявление можно подать лично или через представителя. В заявлении указываются все необходимые данные о гараже и его собственнике.
- После подачи заявления ждать решение соответствующего органа о выдаче декларации. Обычно это занимает от нескольких дней до нескольких недель, в зависимости от загруженности органов.
- Получить декларацию на право собственности гаража. Орган регистрации недвижимости выдает декларацию после положительного решения по заявлению.
- Распечатать декларацию в необходимом количестве экземпляров. Полученную декларацию рекомендуется хранить в безопасном месте вместе с другими документами, подтверждающими право собственности.
В случае возникновения каких-либо вопросов, необходимо обратиться в орган регистрации недвижимости или консультанта в МФЦ для получения разъяснений и дополнительной информации.
Напоминаем, что помимо декларации на право собственности гаража, также могут потребоваться другие документы, в зависимости от местных правил и требований органов регистрации недвижимости.
| Паспорт собственника | Документы, удостоверяющие право собственности на земельный участок |
|---|---|
| Технический паспорт объекта недвижимости | Документы о постановке на учет в органах ГИБДД |
Процесс составления декларации на право собственности гаража
Прежде всего, необходимо иметь исполнительный документ, подтверждающий приобретение гаража. Это может быть договор купли-продажи или иное соглашение, удостоверенное нотариально. Используя данные из исполнительного документа, следует заполнить декларацию на право собственности гаража.
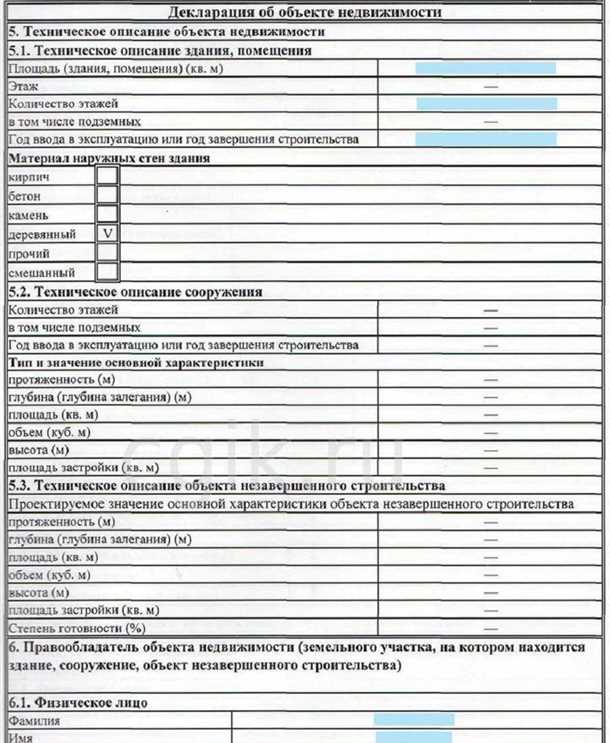
В декларации необходимо указать следующую информацию:
- Полные фамилию, имя, отчество владельца гаража;
- Дата рождения и место жительства владельца;
- Площадь и адрес гаража;
- Сведения о предыдущих владельцах (если таковые имеются);
- Способ приобретения гаража;
- Номер и дату исполнительного документа;
- Подпись владельца гаража и дату составления декларации.
Составленную декларацию требуется подписать лично владельцем гаража. Подпись должна быть сделана в соответствии с установленными правилами, чтобы избежать возможных проблем при ее оспаривании. После подписания декларации рекомендуется сделать копию документа для собственных архивных целей.
После составления и подписания декларации на право собственности гаража, следует обратиться в соответствующую регистрирующую организацию или в орган, осуществляющий регистрацию прав на недвижимость. Там необходимо подать заявление и предоставить все нужные документы, включая декларацию. После проверки документов и подтверждения их законности, владелец гаража будет зарегистрирован как правообладатель объекта недвижимости.
Важно помнить, что процесс составления декларации на право собственности гаража может отличаться в зависимости от юридических норм и правил, действующих в разных государствах или регионах. Для получения более подробной информации и консультации рекомендуется обратиться к юристу или специалисту в области недвижимости.
Какие данные должны быть указаны в декларации на право собственности гаража?
- Имя и фамилия владельца гаража
- Адрес гаража (включая улицу, номер дома и квартиры, если применимо)
- Площадь гаража
- Номер гаража (если имеется)
- Дата и место заключения договора о передаче права собственности
- Сведения о предыдущем владельце гаража (если имеются)
- Документ, подтверждающий право собственности (например, свидетельство о праве собственности или договор купли-продажи)
Кроме того, в декларации могут быть указаны другие сведения, такие как информация о соседних гаражах, информация о любых ограничениях или обязательствах, связанных с использованием гаража, и другая релевантная информация.
Важно, чтобы данные в декларации были точными и полными. Они должны соответствовать документам, подтверждающим право собственности на гараж. Это поможет избежать возможных проблем или споров в будущем.
Что делать, если декларация на право собственности гаража утеряна?
1. Обратитесь в органы местного самоуправления
Первым делом обратитесь в органы местного самоуправления, в которых находится ваш гараж. Необходимо будет предоставить им все доступные данные о гараже, такие как его адрес, номер участка и другие документы, подтверждающие вашу собственность на него. Органы местного самоуправления предоставят вам информацию о дальнейших действиях.
2. Восстановление декларации на право собственности гаража
После обращения в органы местного самоуправления, вам может быть предложено восстановить декларацию на право собственности гаража. Для этого вам потребуется подать заявление и предоставить все необходимые документы, подтверждающие ваше право собственности на гараж. Органы местного самоуправления примут решение о восстановлении декларации.
Если восстановление оригинальной декларации невозможно, вам могут предоставить копию или заверенное восстановленное копия документа. В любом случае, обратитесь в органы местного самоуправления для получения необходимой информации и рекомендаций.
| Необходимые документы для восстановления декларации: | Примечание: |
|---|---|
| Заявление на восстановление декларации | Заполняется по установленной форме |
| Копия паспорта собственника гаража | — |
| Документы, подтверждающие право собственности (например, свидетельство о регистрации права собственности на гараж) | — |
После предоставления всех необходимых документов, органы местного самоуправления рассмотрят вашу заявку и примут соответствующее решение. В случае положительного решения, вам будет выдана новая декларация на право собственности гаража или соответствующее ей подтверждающее документ.
Важно помнить, что утерянная декларация на право собственности гаража не лишает вас владения гаражом. Данный документ является лишь подтверждением вашего права собственности. Однако, восстановление декларации может быть необходимо в случае сделок с гаражом, его регистрации или других юридических процессах.
Документы, необходимые для получения декларации на право собственности гаража
Для получения декларации на право собственности гаража необходимо предоставить следующие документы:
- Паспорт – оригинал и копия паспорта владельца гаража;
- Свидетельство о регистрации – оригинал и копия свидетельства о регистрации гаража;
- Договор купли-продажи – оригинал и копия договора купли-продажи гаража;
- Выписка из ЕГРН – оригинал и копия выписки из Единого государственного реестра недвижимости;
- Документы о наличии задолженности – справка о отсутствии задолженности по коммунальным платежам и налогам;
- Технический паспорт гаража – оригинал и копия технического паспорта гаража;
- Документы об установленных ограничениях – документы об ограничениях права собственности на гараж (если таковые имеются).
Важно: перед подачей документов на получение декларации необходимо проверить их актуальность и правильность оформления. В случае возникновения вопросов или несоответствия требованиям закона, желательно проконсультироваться с юристом или специалистом в области недвижимости.
Какие права дает декларация на право собственности гаража?
1. Право распоряжения: Декларация дает возможность владельцу гаража свободно распоряжаться им. Это означает, что он может продать, подарить, сдать в аренду гараж или использовать его по своему усмотрению.
2. Право использования: Владелец гаража имеет право использовать его для хранения транспортных средств, инструментов, садового оборудования и других ценностей. Он также может использовать гараж в качестве рабочего помещения или для других целей, связанных с обслуживанием и хранением имущества.
3. Право обеспечения безопасности: Декларация на право собственности гаража дает владельцу право принимать меры по обеспечению безопасности своего имущества. Он может устанавливать дополнительные замки, системы сигнализации и видеонаблюдения для защиты от кражи и вандализма.
4. Право участия в принятии решений по управлению: Владелец гаража имеет право участвовать в собраниях и принимать решения по вопросам управления гаражным кооперативом или обществом собственников гаражей. Он может голосовать и высказывать свою позицию по различным вопросам, касающимся общего имущества.
5. Право обращения в суд: В случае нарушения своих прав или интересов, владелец гаража имеет право обратиться в суд за защитой. Декларация на право собственности гаража является доказательством его владения и может быть использована в судебном процессе.
Важно отметить, что декларация на право собственности гаража защищает интересы владельца только на территории, где данная декларация признана действительной.
Вопрос-ответ:
Какую информацию должна содержать декларация на право собственности гаража?
Какова цель декларации на право собственности гаража?
Можно ли изменить декларацию на право собственности гаража после ее оформления?
Каким образом можно получить декларацию на право собственности гаража?
Какие последствия могут наступить в случае неправильного оформления или отсутствия декларации на право собственности гаража?
Что такое декларация на право собственности гаража?
Как получить декларацию на право собственности гаража?
Видео:
ВСТУПЛЕНИЕ В НАСЛЕДСТВО: НОВЫЕ ПРАВИЛА С 2021 ГОДА! ЧТО НУЖНО ЗНАТЬ И УЧИТЫВАТЬ? СОВЕТЫ АДВОКАТА
Как правильно оформить право собственности на землю под гаражом. 29.03.2022
-
Место под гараж -
Приватизация земли под гаражом – важные аспекты и правила -
Кирпичный гараж: преимущества и способы строительства











