Конструкция гаражных распашных ворот
Содержание
- Преимущества распашных ворот
- Мобильность и удобство
- Простота и надежность
- Конструкция распашных ворот
- Каркас
- Наполнение
- Механизмы открывания и закрывания
- Материалы для гаражных ворот
- Металл
- Дерево
- Вопрос-ответ:
- Какие материалы используются для изготовления гаражных распашных ворот?
- Какие преимущества имеют гаражные распашные ворота?
- Какую максимальную ширину могут иметь гаражные распашные ворота?
- Могут ли гаражные распашные ворота быть автоматизированы?
- Каковы основные преимущества гаражных распашных ворот?
- Какие материалы используются для изготовления гаражных распашных ворот?
- Можно ли автоматизировать гаражные распашные ворота?
- Как обеспечить безопасность использования гаражных распашных ворот?
- Видео:
Распашные ворота – популярное решение для обустройства гаражей и промышленных помещений. Они обеспечивают удобство использования, а также сохраняют отопление и позволяют экономить электроэнергию. Конструкция гаражных распашных ворот представляет собой два полотна, которые открываются наружу или внутрь. Такая система позволяет максимально использовать пространство как внутри, так и снаружи гаража, а также удобно размещать автомобили.
Гаражные распашные ворота делятся на два типа: с открыванием вверх и с открыванием вбок. Решение с открыванием вверх позволяет сэкономить пространство внутри гаража, так как ворота поднимаются вверх, параллельно потолку. Однако, установка таких ворот требует больше работы и более сложной конструкции. Распашные ворота с открыванием вбок легко устанавливаются и идеально подходят для небольших гаражей, где нет возможности установить систему высокого подъема.
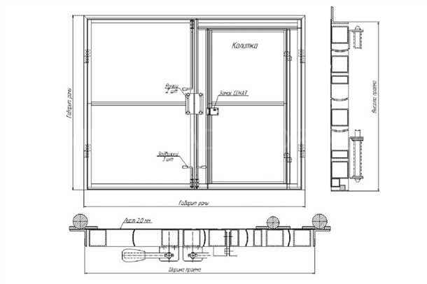
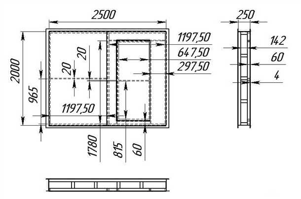
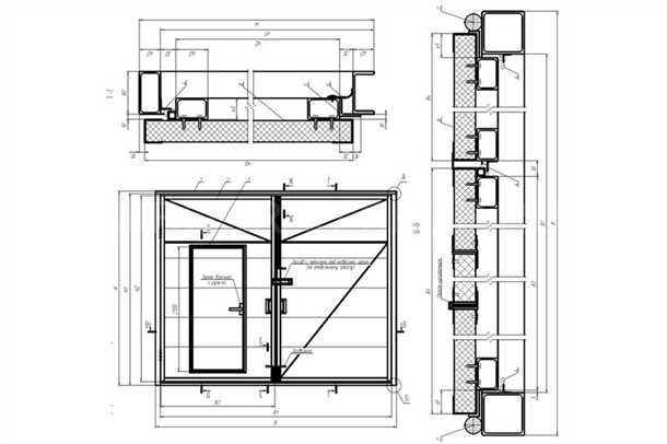
Конструкция распашных ворот включает в себя несколько элементов: раму, полотно, петли, замки и систему открытия. Рама является основной частью конструкции и может быть изготовлена из различных материалов, таких как металл или дерево. Полотно представляет собой две панели, которые открываются наружу или внутрь, а петли позволяют осуществлять вращение полотен вокруг вертикальной оси.
Преимущества распашных ворот
1. Простота и удобство в использовании. Распашные ворота открываются наружу и не требуют дополнительного пространства внутри гаража, что позволяет использовать каждый квадратный метр максимально эффективно.
2. Возможность установки автоматического привода. Распашные ворота легко автоматизировать, добавив автоматический привод. Это позволяет открывать и закрывать ворота с использованием пульта дистанционного управления или даже через мобильное приложение.
3. Надежность и долговечность. Гаражные распашные ворота изготавливаются из прочных материалов, что делает их стойкими к внешним воздействиям и долговечными. Они способны прослужить вам долгие годы, не требуя серьезного обслуживания.
4. Улучшение безопасности. Распашные ворота обладают большей безопасностью по сравнению с другими типами ворот. Они имеют систему обнаружения препятствий, которая останавливает движение ворот, если что-то попадает на их путь. Это снижает риск травмирования, особенно у детей и животных.
5. Эстетический внешний вид. Распашные ворота могут быть выполнены в различных дизайнерских решениях, что позволяет подобрать вариант, который отлично сочетается с дизайном вашего дома или гаража. Красивые и стильные ворота подчеркнут индивидуальность и характер вашего помещения.
Благодаря своим преимуществам, гаражные распашные ворота являются популярным выбором среди многих владельцев гаражей. Они сочетают в себе функциональность, надежность и эстетичность, делая их идеальным решением для любого гаража.
Мобильность и удобство
Гаражные распашные ворота отличаются высокой степенью мобильности и удобства в использовании. В отличие от других видов ворот, их конструкция позволяет открывать и закрывать ворота без особых усилий и без необходимости покидать транспортное средство. Просто нажмите кнопку на пульте управления, и ворота откроются перед вами.
Благодаря своей раздвижной конструкции ворота не занимают дополнительного места на территории участка. В открытом положении ворота закрываются в стену или вдоль забора, что освобождает проездной путь и позволяет использовать всю доступную площадь участка без каких-либо ограничений.
В наше время удобство и мобильность являются важными критериями при выборе гаражных ворот. Модель гаражных распашных ворот предлагает идеальное сочетание этих характеристик, обеспечивая максимальный комфорт в использовании. Благодаря удобному пульту управления, ворота открываются и закрываются за считанные секунды, не требуя усилий со стороны владельца.
Такая конструкция ворот также предоставляет возможность автоматизированного управления с помощью датчиков и систем безопасности. Например, можно установить датчик движения, который будет автоматически открывать и закрывать ворота при подъезде или уходе автомобиля. Это очень удобно и позволяет сэкономить время, особенно в условиях сильной загруженности дорог.
Простота и надежность
Конструкция гаражных распашных ворот отличается высокой степенью простоты и надежности. Они состоят из двух складывающихся секций, каждая из которых крепится к отдельным вертикальным направляющим. Благодаря такому устройству, гаражные ворота легко открываются и закрываются без особых усилий.
Ворота оснащены специальным механизмом для автоматизации работы. Это позволяет максимально упростить процесс эксплуатации. Надежные крепежные элементы обеспечивают долгий и бесперебойный срок службы ворот.
Конструкция распашных ворот
Конструкция распашных ворот обычно включает в себя следующие элементы:
- Стиль рамы: ворота могут иметь прямоугольную, квадратную, арочную или другую форму рамы.
- Материал рамы: распашные ворота могут быть выполнены из дерева, металла, пластика или других материалов.
- Замки и ручки: для обеспечения безопасности и удобства использования, ворота обычно оснащаются замками и ручками.
- Полотно: створки ворот могут быть заполнены сплошной панелью, прозрачным материалом (стеклом или поликарбонатом) или решетчатой конструкцией.
- Привод: для автоматизации открывания и закрывания ворот можно использовать электропривод.
Конструкция распашных ворот может быть адаптирована под индивидуальные потребности и желания владельца. В зависимости от размеров проема и дизайнерских предпочтений, возможны различные варианты исполнения.
Однако, при выборе конструкции стоит учитывать не только эстетические предпочтения, но и практичность, безопасность и функциональность ворот. Важно также учесть особенности местности и климатические условия, чтобы выбрать оптимальный материал и прочность конструкции.
Каркас
Каркас изготавливается из металлических профилей, обычно это стальные или алюминиевые трубы. Материалы выбираются с учетом требований к прочности и весу конструкции, а также климатических условий, в которых будет эксплуатироваться гараж.
Каркас состоит из двух вертикальных стоек и горизонтальных элементов, которые соединяют стойки и образуют раму ворот. Рама ворот жестко крепится к гаражу и несет на себе воротные полотна.
Материалы каркаса
Наиболее распространенными материалами для изготовления каркаса являются:
| Металлические профили | Стальные или алюминиевые трубы, используемые для создания каркаса, обладают высокой прочностью и устойчивостью к коррозии. Они легко поддаются обработке и позволяют создать долговечную и надежную конструкцию. |
| Деревянные балки | Деревянные балки также широко используются для изготовления каркаса ворот. Дерево обладает хорошей прочностью и долговечностью, а также придает воротам естественный и эстетичный вид. Однако деревянные конструкции требуют регулярного обслуживания и защиты от влаги и насекомых. |
| Комбинированные материалы | Также существуют каркасы, выполненные из комбинированных материалов, например, металлический каркас, облицованный древесными панелями. Это позволяет сочетать преимущества различных материалов и получить оптимальное соотношение прочности, долговечности и внешнего вида. |
Выбор материала каркаса зависит от индивидуальных предпочтений, бюджета, климатических условий и требований к воротной конструкции.
Наполнение
Гаражные распашные ворота предлагают широкие возможности для кастомизации и создания уникального внешнего вида. Они могут быть выполнены из различных материалов: металла, дерева, пластика и других. Это позволяет индивидуализировать ворота под стиль дома и создать гармоничное единство с окружающей архитектурой.
Для декоративного оформления гаражных распашных ворот можно использовать разнообразные элементы. Например, на ворота можно установить кованые вставки или фигурные элементы из металла. Они придадут воротам особый шарм и привлекательность.
Для тех, кто предпочитает более сдержанный дизайн, существуют варианты гладких ворот без декоративных элементов. Это идеальный выбор для современных стилей и минимализма.
Важно также уделить внимание выбору цвета ворот. Они могут быть окрашены в любой цвет, соответствующий общему стилю фасада здания или контрастировать с ним для создания уникального акцента.
Также, ворота могут быть оснащены окнами. Они не только придают воротам эстетическую привлекательность, но и обеспечивают естественное освещение внутреннего пространства гаража. Окна могут быть выполнены в разных стилях и размерах, с учетом пожеланий владельца ворот.
Конечный вид гаражных распашных ворот будет зависеть от выбранных материалов, декоративных элементов и цветовой гаммы. Желаемое наполнение ворот поможет создать интересный и стильный фасад здания, подчеркнуть индивидуальность владельца и повысить его комфорт.
Механизмы открывания и закрывания
Гаражные распашные ворота оснащены различными механизмами, которые обеспечивают открывание и закрывание конструкции. Для удобства пользователей существует несколько вариантов механизмов, которые можно выбрать в зависимости от предпочтений и особенностей конкретного гаража.
Один из самых распространенных механизмов открывания и закрывания гаражных ворот – это пружинный механизм. Он используется в случае, когда установка электропривода невозможна или не предпочтительна. Пружинный механизм работает на основе силы натяжения пружин, которые помогают поднимать и опускать ворота. Для открытия ворот необходимо приложить усилие и вручную оттянуть ворота от открычной рамы. Затем, под действием пружин, ворота автоматически поднимаются. Закрытие осуществляется в обратном порядке: ворота плавно опускаются до закрытого положения.
Еще один популярный механизм открывания и закрывания гаражных ворот – это электропривод. Он значительно облегчает использование ворот и позволяет автоматизировать процесс открывания и закрывания. В состав электропривода входят мотор, редуктор и система управления. При помощи пульта дистанционного управления или кнопки на стене гаража можно управлять открыванием и закрыванием ворот. Электропривод оснащен сенсорами безопасности, обеспечивающими автоматическое отключение в случае препятствия на пути ворот. Это защищает от травм и повреждений автомобиля или других предметов.
Кроме пружинного механизма и электропривода, гаражные распашные ворота могут быть оснащены другими механизмами открывания и закрывания. Например, гидравлический механизм, который использует жидкость для создания силы и открывания ворот. Также существуют ворота с автоматическими системами управления, которые позволяют открыть и закрыть ворота при помощи смартфона или планшета.
Выбор механизма открывания и закрывания гаражных распашных ворот зависит от множества факторов, включая желаемый уровень автоматизации, функциональность, безопасность и бюджет. При выборе механизма следует учитывать возможности и особенности конкретного гаража, а также предпочтения и потребности пользователей.
Материалы для гаражных ворот
При выборе материалов для гаражных ворот следует учитывать несколько ключевых факторов: прочность, долговечность, эстетическую составляющую и уровень безопасности. Вариантов материалов для гаражных ворот существует несколько, каждый из которых имеет свои преимущества и особенности.
Стальные ворота. Сталь является одним из наиболее распространенных материалов для гаражных ворот. Он обладает высокой прочностью и устойчивостью к воздействию погоды. Стальные ворота также могут быть покрыты специальным покрытием, обеспечивающим защиту от коррозии. Однако, стальные ворота могут быть более подвержены внешним повреждениям, таким как царапины или вмятины.
Алюминиевые ворота. Алюминий является легким, прочным и устойчивым к коррозии материалом. Алюминиевые ворота могут иметь различные отделки, включая покрытие под дерево или металл, что позволяет им легко сочетаться с дизайном фасада здания. Однако, алюминиевые ворота могут быть более подвержены повреждениям при сильных ветрах или механическим воздействиям.
Деревянные ворота. Дерево придает гаражным воротам естественный и теплый вид. Деревянные ворота могут быть изготовлены из различных пород дерева, таких как дуб или лиственница. Они могут быть окрашены или лакированы для защиты от погодных условий. Однако, деревянные ворота требуют регулярного ухода и обслуживания, так как дерево может подвергаться влиянию влаги, насекомых и грибка.
Пластиковые ворота. Пластиковые ворота обладают высокой стойкостью к воздействию погоды, легкостью и низким уровнем обслуживания. Они могут быть окрашены в различные цвета и иметь различные текстуры. Пластиковые ворота могут быть более подвержены повреждениям при сильных ударах или высоких температурах.
Правильный выбор материалов для гаражных ворот зависит от индивидуальных потребностей, бюджета и требований к дизайну. Важно учитывать все факторы и обратиться к специалистам, чтобы выбрать материал, который наилучшим образом сочетается со стилем вашего дома и обеспечивает необходимую функциональность и безопасность.
Металл
Гаражные распашные ворота обычно изготавливаются из металла, так как он обладает высокой прочностью и долговечностью. Металлические ворота защищают гараж от несанкционированного проникновения и внешних воздействий, таких как атмосферные осадки или попытки взлома.
В зависимости от предпочтений и бюджета, ворота могут быть изготовлены из различных металлических материалов, таких как сталь или алюминий. Стальные ворота являются наиболее популярным вариантом, так как они обладают высокой прочностью и стойкостью к повреждениям. Алюминиевые ворота обладают легкостью и эстетичным внешним видом, но при этом менее прочны по сравнению со стальными.
Для обеспечения дополнительной прочности и защиты от коррозии, ворота могут быть покрыты специальными защитными покрытиями, такими как порошковая покраска или горячее цинкование. Эти покрытия придают воротам не только прочность, но и эстетичность, так как цвет можно выбрать по желанию заказчика.
Изготовление и установка металлических ворот обычно требуют профессиональных навыков и инструментов, поэтому рекомендуется обратиться к специалистам, которые смогут выполнить эту работу качественно и в срок. Правильное изготовление и монтаж ворот обеспечит их надежность и долговечность на многие годы.
Дерево
Выбор дерева для гаражных распашных ворот является важным этапом при их строительстве. Древесина должна обладать высокой прочностью и стабильностью, а также быть устойчивой к воздействию внешних факторов, таких как влага, гниение и насекомые.
| Вид дерева | Преимущества | Недостатки |
|---|---|---|
| Сосна | Доступность, низкая стоимость, устойчивость к гниению | Мягкая древесина, требует дополнительной обработки |
| Ель | Хорошая стабильность, эстетичный вид | Высокая стоимость, недостаточная прочность |
| Дуб | Высокая прочность, долговечность, устойчивость к влаге | Высокая стоимость, тяжелая древесина |
При выборе дерева для гаражных распашных ворот также необходимо учитывать его эстетические качества, так как дерево может стать главным украшением дома. Оттенок, текстура и отделка древесины могут создать особую атмосферу и придать уникальность воротам.
Независимо от выбранного вида дерева, необходимо правильно обработать и защитить поверхность древесины для повышения ее стойкости к воздействию внешних факторов и увеличения срока службы ворот.
Вопрос-ответ:
Какие материалы используются для изготовления гаражных распашных ворот?
Какие преимущества имеют гаражные распашные ворота?
Какую максимальную ширину могут иметь гаражные распашные ворота?
Могут ли гаражные распашные ворота быть автоматизированы?
Каковы основные преимущества гаражных распашных ворот?
Какие материалы используются для изготовления гаражных распашных ворот?
Можно ли автоматизировать гаражные распашные ворота?
Как обеспечить безопасность использования гаражных распашных ворот?
Видео:
Распашные ворота. Самый надёжный механизм. Увеличить дальность срабатывания механизма. Автоматика
Как самому собрать гаражные ворота с калиткой! / Все нюансы сборки с чертежом и размерами!
-
Место под гараж -
Приватизация земли под гаражом – важные аспекты и правила -
Кирпичный гараж: преимущества и способы строительства










