Постройка летней кухни с гаражом
Содержание
- Постройка летней кухни с гаражом [Гараж garazh]
- Выбор места и планировка проекта
- Разработка дизайн-проекта и составление сметы
- Выбор материалов и строительных технологий
- Организация фундамента и навеса
- Монтаж каркаса и устройство крыши
- Утепление и обустройство пола, стен и потолка
- Установка окон и дверей
- Отделка и декорирование летней кухни с гаражом
- Вопрос-ответ:
- Какие материалы лучше всего использовать для строительства летней кухни с гаражом?
- Какой размер должна иметь летняя кухня с гаражом?
- Какие особенности следует учесть при планировке летней кухни с гаражом?
- Какие разрешения нужно получить для строительства летней кухни с гаражом?
- Какие преимущества есть у летней кухни с гаражом?
- Как выбрать место для строительства летней кухни с гаражом?
- Какие материалы следует использовать для строительства летней кухни с гаражом?
- Сколько времени может занять строительство летней кухни с гаражом?
- Какова стоимость строительства летней кухни с гаражом?
- Видео:
Летние кухни становятся все более популярными: они предоставляют возможность наслаждаться свежим воздухом, зеленью и природой, не отказываясь от комфорта дома. Кроме того, у многих хозяев есть обширные участки, на которых можно разместить летнюю кухню, а часто рядом с ней можно построить гараж. Вот почему многие решаются на строительство летней кухни с гаражом.
Преимущества такого решения очевидны. Построив кухню непосредственно рядом с гаражом, вы экономите место и располагаете всем необходимым на одном участке. Готовя на открытом воздухе, вы сможете наслаждаться ароматом свежих продуктов и одновременно следить за своим автомобилем, который будет всегда под присмотром. Кроме того, такая организация пространства позволяет легко и быстро передвигаться из дома в кухню и гараж без необходимости переходить дорогу или преодолевать другие препятствия.
Главное в строительстве летней кухни с гаражом – это грамотное планирование. Оно напрямую зависит от площади вашего участка и ваших потребностей. Постарайтесь представить, как вы будете пользоваться этими сооружениями: какое оборудование понадобится вам в кухне, какой размер гаража будет достаточным и так далее. Также учтите месторасположение водопровода и электропроводки, чтобы сэкономить планирование и бюджет.
Постройка летней кухни с гаражом [Гараж garazh]
Преимущества постройки летней кухни с гаражом
- Увеличение полезной площади. Постройка летней кухни совместно с гаражом позволяет использовать свободное пространство на участке максимально эффективно.
- Дополнительные возможности для отдыха и приготовления пищи. Летняя кухня предоставляет возможность готовить пищу на свежем воздухе, проводить барбекю или просто наслаждаться приятной компанией на открытом воздухе.
- Удобство хранения автомобиля. Гараж, встроенный в конструкцию летней кухни, позволяет сохранить ваш автомобиль в надежности и защите от неблагоприятных погодных условий.
- Стильный внешний вид. Постройка летней кухни с гаражом может стать прекрасным дополнением к архитектуре вашего дома, придав ему уникальный и элегантный вид.
Как построить летнюю кухню с гаражом?
Для постройки летней кухни с гаражом рекомендуется обратиться к профессионалам, которые помогут вам спланировать и реализовать ваш проект. Процесс строительства включает в себя следующие шаги:
- Подготовка проекта. Важно разработать детальный план, учитывающий размеры участка, желаемые функции каждого помещения, а также требования строительных норм и правил.
- Подготовка места для строительства. Необходимо обеспечить ровную и устойчивую поверхность под фундамент и выбрать оптимальное расположение конструкции на участке.
- Строительство фундамента. Фундамент должен быть прочным и надежным, чтобы обеспечить стабильность всей постройки.
- Возведение стен и крыши. После установки фундамента нужно приступить к строительству стен и крыши в соответствии с выбранным проектом.
- Отделка и внутренняя обработка. После завершения строительства основной конструкции можно приступить к отделке помещений и проведению работ по внутренней обработке.
- Установка входных и гаражных дверей. Важным шагом является установка входных и гаражных дверей, которые обеспечат безопасность и функциональность вашей летней кухни с гаражом.
Постройка летней кухни с гаражом придаст вашему участку новый функционал и красоту. Это отличное решение для тех, кто ценит комфорт, уют и практичность. Сделайте свой собственный уголок спокойствия и радости прямо у себя на участке!
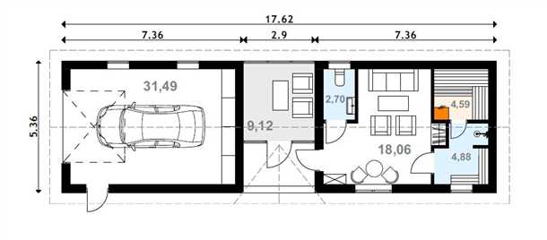
Выбор места и планировка проекта
Прежде всего, необходимо учесть климатические условия региона, в котором будет строиться летняя кухня. Важно выбрать такое место, чтобы оно было защищено от ветров, особенно северных, и не подвержено затоплениям во время дождей или снегопадов.
Также следует учесть уровень освещения места, чтобы приготовление пищи и общение не стали проблемой в темное время суток.
Очень важно обратить внимание на расстояние от летней кухни до основного жилого здания. Для удобства использования, удобно разместить кухню недалеко от кухни в основном жилом здании. Она должна быть легко доступна для переноса продуктов и посуды, а также для проведения вентиляции и коммуникаций.
При планировке проекта следует учесть функциональность летней кухни. Разметить зоны приготовления пищи, обеденный стол, зону для отдыха и развлечений. Также можно учесть возможность установки открытого мангала или барбекю.
Помимо этого, при планировке проекта следует учесть доступность воды и электричества. Необходимо предусмотреть возможность подключения водопровода и канализации для удобной работы с водой в процессе приготовления пищи и мытья посуды. Также необходимо позаботиться о подключении электричества для работы холодильника, света и других бытовых приборов.
Выбор места и планировка проекта должны быть хорошо обдуманными и учитывать все потребности и комфортное использование летней кухни с гаражом.
Разработка дизайн-проекта и составление сметы
Перед началом строительства летней кухни с гаражом необходимо разработать дизайн-проект, который позволит определить внешний вид и функциональность сооружения. Разработка проекта включает в себя выбор материалов, расстановку мебели, планировку комнат и оснащение техническими системами.
Важным этапом в разработке дизайн-проекта является определение стиля, в котором будет выполнено сооружение. Стиль должен соответствовать общей архитектуре дома и природному окружению. При проектировании следует учесть особенности климата и уровень шума в данном районе.
Дизайн-проект летней кухни с гаражом должен обеспечивать удобство использования пространства и соответствовать требованиям заказчика. Необходимо учесть количество комнат, их площадь и размещение функциональных зон. Добавление санузла, кухонной зоны, мест для хранения и отдыха, а также возможность использования гаража – одни из важнейших аспектов при разработке проекта.
После разработки дизайн-проекта, необходимо выполнить смету на строительство летней кухни с гаражом. Составление сметы позволяет определить стоимость проекта и необходимые материалы. Стоит учесть, что при составлении сметы следует учесть стоимость материалов, строительных работ и профессиональных услуг.
Разработка дизайн-проекта и составление сметы предполагает детальное планирование, чтобы учесть все требования заказчика и создать комфортное и функциональное пространство согласно установленным бюджетным ограничениям.
Создание летней кухни с гаражом – это долгосрочное решение, поэтому важно провести качественную разработку дизайн-проекта и составить точную смету, чтобы обеспечить успешное строительство и удовлетворить все потребности заказчика.
Выбор материалов и строительных технологий
При выборе материалов следует учитывать несколько факторов:
| Фактор | Критерии выбора |
|---|---|
| Прочность | Материал должен быть достаточно прочным и выдерживать нагрузки, такие как ветер, снег, дождь. |
| Устойчивость к влаге | Летняя кухня с гаражом будет находиться на улице, поэтому выбранный материал должен хорошо справляться с влагой и не деформироваться, не гниить или не разрушаться. |
| Теплоизоляция | Хорошая теплоизоляция позволит сохранять тепло в летнем периоде и защищать от холода в зимний период. Это особенно важно, если внутри летней кухни будет небольшая комната или гараж, который может быть использован как холодильник. |
| Экологичность | Материал должен быть безопасным для здоровья и окружающей среды, не выделять вредные вещества и не иметь неприятного запаха. |
Существует несколько популярных материалов и строительных технологий, которые часто используются при постройке летних кухонь с гаражами:
1. Кирпич или блоки
Постройка из кирпича или блоков является самым устойчивым и прочным вариантом. Кирпичные стены хорошо удерживают тепло и не пропускают влагу. Однако такая постройка может быть затратной по времени и стоимости, требует профессиональных навыков мастера.
2. Деревянные конструкции
Дерево — это классический материал для летних кухонь и гаражей. Он обладает естественным шармом и уютом. Деревянные конструкции требуют регулярного ухода, обработки антисептиками и лаками, но благодаря этому они могут прослужить долгие годы и отлично сочетаются с природой.
3. Металлические конструкции
Металлические конструкции, такие как профилированный или сэндвич-панель, отличаются прочностью и долговечностью. Они хорошо защищают от влаги и могут использоваться для строительства как летних кухонь, так и гаражей. Однако металл может проводить тепло, поэтому для поддержания комфортной температуры внутри необходима хорошая теплоизоляция.
При выборе подходящих материалов и строительных технологий для постройки летней кухни с гаражом следует учитывать индивидуальные потребности и возможности, а также конкретные особенности местности и климата.
Организация фундамента и навеса
Перед началом работ необходимо определить тип фундамента, который лучше всего подойдет для вашей летней кухни с гаражом. Один из наиболее распространенных вариантов — ленточный фундамент. Он представляет собой полосу бетона, которая окружает периметр сооружения.
Организация фундамента включает в себя следующие этапы:
- Подготовка участка: необходимо удалить верхний слой почвы и выровнять поверхность.
- Монтаж опалубки: опалубка поможет создать форму будущего фундамента.
- Укладка арматуры: арматура усилит конструкцию фундамента и улучшит его прочность.
- Заливка бетона: после подготовки опалубки и укладки арматуры производится заливка бетонной смеси.
После организации фундамента следует приступить к созданию навеса. Навес защитит вашу летнюю кухню и гараж от осадков, позволит вам комфортно проводить время на открытом воздухе.
При выборе типа навеса важно учесть следующие факторы:
- Размер и форма навеса: определите, какое пространство необходимо покрыть и какую форму должен иметь навес.
- Материалы: выберите качественные и долговечные материалы, которые будут устойчивы к внешним воздействиям.
- Конструкция: обратитесь к специалистам, чтобы разработать оптимальную конструкцию навеса, учитывая нагрузки и климатические условия.
Построив фундамент и организовав навес, вы создадите прочную и функциональную летнюю кухню с гаражом, которая будет служить вам долгие годы.
Монтаж каркаса и устройство крыши
Первым делом необходимо установить фундаментные блоки или сваи, которые будут служить опорой для каркаса. Расстояние между опорами должно быть рассчитано таким образом, чтобы каркас получился устойчивым и не деформировался в процессе эксплуатации.
Далее следует произвести маркировку мест установки стоек каркаса. Для этого можно использовать шнурок или рейку, чтобы обозначить линию, по которой будут расположены стойки.
После маркировки начинается возведение самого каркаса. Для этого нужно закрепить вертикальные стойки на фундаментных блоках или сваях. Рекомендуется использовать прочные и долговечные материалы, например, металлические профили или деревянные балки.
После установки вертикальных стоек следует закрепить горизонтальные балки, которые будут служить основанием для кровли. Они должны быть достаточно прочными, чтобы выдерживать нагрузку от снега и дождя.
После установки каркаса можно приступить к устройству крыши. Для этого рекомендуется использовать кровельные материалы, которые обеспечат хорошую защиту от осадков и влаги.
При выборе кровельного материала необходимо учесть такие факторы, как прочность, стоимость, экологичность и эстетический вид. Наиболее популярными и надежными материалами являются металлочерепица, профнастил и ондулин.
При укладке кровли нужно помнить о правильном уклоне для стока воды. Это позволит избежать скопления влаги на крыше и возникновения протечек.
Таким образом, монтаж каркаса и устройство крыши являются ключевыми этапами при строительстве летней кухни с гаражом. Правильно выполненная и надежная конструкция гарантирует долгую и безопасную эксплуатацию сооружения.
Утепление и обустройство пола, стен и потолка
При строительстве летней кухни с гаражом, особое внимание необходимо уделить утеплению и обустройству пола, стен и потолка, чтобы обеспечить комфорт и сохранить тепло.
Утепление пола
Пол летней кухни с гаражом должен быть утеплен, чтобы избежать проникновения холода и влаги. Для этого может использоваться утеплитель в виде плит из экструдированного полистирола, которые прекрасно сохраняют тепло и обладают хорошей звукоизоляцией. Плиты укладываются на подготовленную основу и закрепляются специальным клеем или монтажными скобами. После этого на утепленный пол укладывается финишное покрытие – например, ламинат, керамическая плитка или линолеум.
Утепление стен
Для утепления стен летней кухни с гаражом применяются различные материалы, в том числе минеральная вата, пенопласт или пенополистирол. Утеплитель укладывается между каркасом стен и обшивкой. При утеплении стен также необходимо учесть вентиляцию, чтобы избежать скопления влаги и появления грибка.
Утепление потолка
Потолок летней кухни с гаражом также требует утепления, чтобы обеспечить сохранение тепла и комфортное пребывание в помещении. Для этого может быть использовано утеплительное покрытие, например, минеральная вата или пенополистирол. Утеплитель укладывается под обшивку потолка и закрепляется специальными крепежными элементами.
Важно помнить, что правильное утепление пола, стен и потолка летней кухни с гаражом поможет создать комфортные условия для использования помещения круглогодично. Кроме того, утепление позволит сэкономить на энергозатратах и обеспечит долговечность конструкции.
Установка окон и дверей
Выбор окон
При выборе окон для летней кухни необходимо учитывать несколько факторов. Во-первых, окна должны быть качественными и надежными, чтобы обеспечивать хорошую тепло- и шумоизоляцию. Важно также учесть стиль и дизайн постройки, чтобы окна вписывались в общую композицию.
Установка окон
Установка окон должна производиться с соблюдением всех технологических требований. Сначала необходимо установить оконные рамы, при этом важно обеспечить герметичность и неподвижность конструкции. Затем следует установить стеклопакеты, используя специальные крепежные элементы. После установки окон необходимо проверить их функциональность и герметичность, при необходимости произвести регулировку и уплотнение.
Кроме окон, необходимо установить также входную дверь. Она должна быть прочной и надежной, обеспечивать хорошую тепло- и звукоизоляцию. Дверь должна также хорошо сочетаться с общим дизайном кухни, подчеркивая ее стиль.
| Преимущества правильной установки окон и дверей: |
|---|
| — Хорошая тепло- и шумоизоляция; |
| — Защита от атмосферных осадков; |
| — Улучшение внешнего вида постройки; |
| — Обеспечение безопасности; |
| — Увеличение комфорта пребывания в летней кухне. |
Правильная установка окон и дверей в летней кухне с гаражом играет важную роль и является неотъемлемой частью процесса строительства. При выборе и установке следует обращаться к профессионалам, чтобы получить надежные и качественные элементы конструкции.
Отделка и декорирование летней кухни с гаражом
Отделка и декорирование летней кухни с гаражом имеет важное значение для создания уютной и функциональной обстановки. Правильно подобранные материалы и элементы декора помогут сделать пространство комфортным и стильным.
Выбор отделочных материалов
При выборе материалов для отделки летней кухни с гаражом, необходимо учитывать их прочность, устойчивость к влаге и температурным перепадам. Для отделки внутренних стен и потолка подходят покраска, обои или деревянные панели. На пол рекомендуется уложить кафельную плитку или ламинат.
Элементы декора
Для создания уютной атмосферы в летней кухне можно использовать различные элементы декора. Зелень живых растений подойдет для озеленения пространства и добавит свежести. Вазы с цветами или свечные подсвечники станут ярким акцентом на столе или стеллаже. Красивые столовые приборы и текстильные аксессуары также способны придать интерьеру особый шарм.
- Зонирование пространства
- Размещение полок и шкафов
- Освещение
- Подушки и покрывала
Для оптимального использования пространства летней кухни с гаражом можно провести зонирование. Например, выделить место для приготовления пищи, обеденную зону и зону отдыха. Для этого можно использовать мебель или разделительные экраны.
Размещение полок и шкафов позволит организовать удобное хранение кухонной утвари, продуктов и других необходимых вещей. Выбирайте открытые полки или закрытые шкафы в зависимости от стиля и размеров летней кухни с гаражом.
Освещение играет важную роль в создании атмосферы в летней кухне с гаражом. Разместите разнообразные источники света: потолочные светильники для основного освещения, настольные лампы для дополнительного света и свечи для романтического настроения.
Подушки и покрывала с различными принтами и текстурами добавят комфорт и уют в летнюю кухню с гаражом. Выбирайте яркие цвета и интересные узоры, которые подчеркнут стиль интерьера.
Вопрос-ответ:
Какие материалы лучше всего использовать для строительства летней кухни с гаражом?
Какой размер должна иметь летняя кухня с гаражом?
Какие особенности следует учесть при планировке летней кухни с гаражом?
Какие разрешения нужно получить для строительства летней кухни с гаражом?
Какие преимущества есть у летней кухни с гаражом?
Как выбрать место для строительства летней кухни с гаражом?
Какие материалы следует использовать для строительства летней кухни с гаражом?
Сколько времени может занять строительство летней кухни с гаражом?
Какова стоимость строительства летней кухни с гаражом?
Видео:
Строим летнюю кухню из шлакоблоков за один день.
Гараж для двух авто / Тех-помещение / Баня с комнатой отдыха / Из керамзитного блока (апрель 2022)
-
Место под гараж -
Приватизация земли под гаражом – важные аспекты и правила -
Кирпичный гараж: преимущества и способы строительства










