Проект бани с гаражом
Содержание
- Проект бани с гаражом [Гараж garazh]
- Преимущества проекта
- Планировка бани с гаражом
- Материалы и технологии строительства
- Особенности фундамента
- Возможности для хранения и отдыха
- Отопление и вентиляция
- Как выбрать проект бани с гаражом
- Примеры реализованных проектов
- Вопрос-ответ:
- Какую площадь занимает проект бани с гаражом?
- Какие материалы используются при строительстве проекта бани с гаражом?
- Сколько времени занимает строительство проекта бани с гаражом?
- Можно ли изменить проект бани с гаражом по своему усмотрению?
- Какие преимущества имеет проект бани с гаражом?
- Что такое проект бани с гаражом?
- Как выбрать проект бани с гаражом?
- Сколько стоит построить баню с гаражом?
- Какие материалы лучше использовать при строительстве бани с гаражом?
- Какие преимущества есть у бани с гаражом?
- Где можно построить проект бани с гаражом?
- Видео:
Строительство загородной бани с гаражом – это идеальное решение для тех, кто хочет объединить в одном сооружении место для отдыха и хранения автомобиля. Такой проект обладает несомненными преимуществами, ведь он позволяет сэкономить место на участке и обеспечивает комфортное проживание на даче.
Главными достоинствами проекта бани с гаражом являются его функциональность и удобство. Внутри бани можно разместить все необходимое для полноценного отдыха: парилку, комнату отдыха, душевую, гостевую зону. Гараж же позволит владельцам держать автомобиль в надежном месте, защищенном от атмосферных осадков и несанкционированного доступа.
Помимо практичности, проект бани с гаражом также предоставляет бесконечные возможности для создания интересного и оригинального дизайна. Вы можете выбрать различные материалы для отделки стен и полов, установить большие окна или панорамные двери, добавить красивые элементы декора. Такое сооружение точно станет украшением вашего участка!
Проект бани с гаражом [Гараж garazh]
Строительство комбинированных сооружений, включающих баню и гараж, становится все более популярным. Такой проект позволяет совместить удовольствие от посещения бани с удобством хранения автомобиля и других вещей в гараже. Помимо этого, проект бани с гаражом обеспечивает экономию пространства и рациональное использование территории участка.
Преимущества проекта бани с гаражом
- Удобство и комфорт: Комбинированное сооружение позволяет получить все преимущества бани и гаража в одном месте. Вы сможете уделить время отдыху и расслаблению в бане, а затем моментально переключиться на заботу о своем автомобиле, не тратя лишнего времени на перемещения между разными постройками.
- Экономия пространства: Сооружение бани с гаражом занимает меньше места на участке, чем отдельно стоящая баня и гараж. Это особенно актуально для тех, у кого ограничена площадь участка.
- Оптимальное использование: Проект предусматривает рациональное использование пространства, где баня и гараж сосуществуют в гармонии. Вы сможете максимально эффективно использовать внутреннее и наружное пространство, что позволит сделать вашу жизнь более удобной.
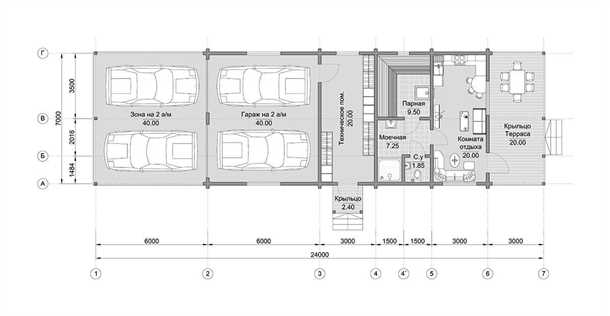
Пример планировки проекта бани с гаражом [Гараж garazh]
При разработке проекта бани с гаражом важно учесть все ваши требования и пожелания, а также особенности участка и климатические условия местности. Вот пример возможной планировки такого проекта:
- Гараж с воротами и удобным заездом для автомобиля.
- Техническое помещение, где располагаются необходимые инструменты и оборудование.
- Просторная комната для отдыха, где установлены парная, отдельный душ и санузел.
- Гардеробная, где можно раздеться перед посещением бани.
- Комната отдыха с местом для отдыха после парной.
- Кухонная зона с возможностью приготовления пищи.
- Уютная терраса для отдыха на открытом воздухе.
Конечно, эта планировка является всего лишь примером, и вы можете вносить в нее изменения в зависимости от ваших потребностей и предпочтений.
Проект бани с гаражом открывает новые возможности для уютной жизни на вашем участке. Будьте уверены, что правильная планировка и качественное исполнение помогут вам создать пространство, где вы будете чувствовать себя комфортно и уютно в любое время года.
Преимущества проекта
Проект бани с гаражом предлагает множество преимуществ, которые делают его идеальным решением для тех, кто хочет комбинировать отдых и хранение автомобиля.
1. Удобство и комфорт
Проект бани с гаражом предусматривает разделение здания на две функциональные зоны: баню и гараж. Это позволяет создать комфортные условия для отдыха и хранения автомобиля. Члены семьи смогут наслаждаться баней, а в то же время не беспокоиться о сохранности автомобиля, так как он будет находиться внутри здания.
2. Экономия места
Комбинированная баня с гаражом позволяет сэкономить место на участке. Вместо двух отдельных зданий вам потребуется всего одна постройка, что освободит значительную площадь для других целей.
3. Возможности для реконструкции
Проект бани с гаражом предоставляет возможности для реконструкции и модернизации. Вы можете изменить размеры бани и гаража, добавить дополнительные комнаты или функциональные зоны в будущем, чтобы строение полностью отвечало вашим потребностям.
4. Эстетическое привлекательность
Комбинированная баня с гаражом может быть выполнена в различных стилях и материалах, что позволяет создать уникальный дизайн, сочетающий в себе эстетическое привлекательность и функциональность здания.
В итоге, проект бани с гаражом объединяет удобство и комфорт отдыха в бане и надежную защиту автомобиля. Этот проект является оптимальным решением для людей, ценящих функциональность, экономию места и возможности для изменений в будущем.
Планировка бани с гаражом
При разработке планировки бани с гаражом необходимо учесть не только функциональность помещений, но и их комфортность. Как правило, баня и гараж представляют собой отдельные здания, объединенные единым проектом.
Внутренняя планировка бани может включать следующие помещения:
- Парная — главное помещение бани, где располагается печь и площадки для принятия парных процедур.
- Предбанник — помещение, предшествующее парной, где можно отдохнуть перед процедурами и принять шапку.
- Душевая — комната с душем и санитарными узлами для комфортной гигиены.
- Раздевалка — помещение, где размещаются шкафы для одежды и принадлежности.
- Отдельный вход — предусмотреть отдельный вход в баню для удобства посетителей.
Гараж в проекте бани с гаражом может включать следующие помещения:
- Машино-моечная — помещение для мойки автомобилей с соответствующим оборудованием.
- Автомастерская — комната с инструментами и оборудованием для проведения ремонтных работ.
- Склад — помещение для хранения инструментов, запасных частей и принадлежностей для автомобилей.
- Рабочий уголок — место для выполнения различных процедур и работ над автомобилем.
Важным аспектом при разработке планировки бани с гаражом является удобство перемещения между помещениями, а также безопасность воздухообмена и контроль температуры.
Материалы и технологии строительства
При строительстве проекта бани с гаражом используются различные материалы и технологии, которые обеспечивают прочность, надежность и долговечность сооружения. Важно правильно выбрать материалы, которые соответствуют требованиям климатических условий и функциональным характеристикам проекта.
Основными материалами, применяемыми при строительстве бани с гаражом, являются:
- Дерево. Деревянные конструкции имеют особую привлекательность и придают бани с гаражом уютный и теплый вид. Для строительства используются различные породы дерева, такие как сосна, лиственница, дуб и др. Важно правильно обработать дерево для защиты от вредителей и гниения.
- Кирпич. Кирпичные стены обеспечивают прочность и теплоизоляцию. Используются специальные виды кирпича, которые подходят для строительства бани с гаражом.
- Бетон. Бетонные конструкции используются для фундамента, стен и перекрытий. Бетон обладает высокой прочностью и устойчивостью к влаге, что важно для бани и гаража.
- Металл. Металлические конструкции применяются для строительства каркаса гаража, а также для дверей, окон и других элементов. Металл обладает долговечностью и устойчивостью к коррозии.
Помимо материалов, в строительстве бани с гаражом применяются современные технологии, которые обеспечивают высокую энергоэффективность и комфортность:
- Утепление. Для обеспечения теплоизоляции сооружения используются утеплители, такие как минеральная вата, пенопласт, эковата и др. Утепление позволяет сохранять тепло внутри бани и гаража, а также снижает затраты на отопление.
- Вентиляция. Для поддержания свежего воздуха в помещениях используются системы вентиляции. Они обеспечивают циркуляцию воздуха и удаляют избыточную влагу, предотвращая образование плесени.
- Гидроизоляция. Важным этапом в строительстве бани с гаражом является гидроизоляция. Она предотвращает попадание влаги в конструкции и защищает от возможных повреждений.
Выбор материалов и технологий строительства должен быть основан на характеристиках проекта, его функциональных требованиях и климатических условиях. Это поможет создать прочное и комфортное сооружение, которое будет служить долгие годы.
Особенности фундамента
Одним из наиболее распространенных вариантов фундамента является ленточный фундамент. Он обладает высокой прочностью и используется в случае, когда необходимо обеспечить устойчивость строения на разных типах грунта. Ленточный фундамент состоит из железобетонных полос, расположенных под всей периметром строения. Он позволяет равномерно распределить нагрузку и обеспечивает надежную основу для бани с гаражом.
Еще одним вариантом фундамента, который можно использовать, является свайный фундамент. Он применяется на высокоаллергенных грунтах или при строительстве на склоне. Свайный фундамент обычно работает на опорных сваях из бетона или металла, которые забиваются в грунт на определенную глубину. Свайный фундамент идеально подходит для создания надежной основы для бани и гаража, а также способен компенсировать неровности грунта.
Глубина и утепление фундамента
Глубина фундамента для бани с гаражом зависит от множества факторов, таких как тип грунта, климатические условия и предполагаемая нагрузка на строение. Обычно рекомендуется устанавливать фундамент на глубину от 1,5 до 2 метров, чтобы обеспечить надежность и устойчивость строения.
Важной частью фундамента является его утепление. Для того чтобы обеспечить оптимальный тепловой режим в бане и гараже, необходимо использовать утеплительные материалы, такие как минеральная вата или пенополистирол. Утепление фундамента помогает предотвратить промерзание строения зимой и сохранить тепло внутри здания.
Фронтальная часть фундамента
Одной из важных особенностей фундамента для бани с гаражом является его фронтальная часть. В этой части фундамента обычно размещается вход в гараж, а также нужно предусмотреть место для установки ворот и дверей.
Фронтальная часть фундамента требует особого внимания при его проектировании и строительстве. Необходимо учесть размеры и габариты гаражных ворот, а также позволить отводить необходимое пространство для передвижения транспортных средств. Также стоит учесть размещение электрических и водопроводных коммуникаций, которые могут проходить через фронтальную часть фундамента.
Особенности фундамента для проекта бани с гаражом могут значительно варьироваться в зависимости от условий строительства и потребностей заказчика. Важно провести подробную проектную работу и проконсультироваться с профессионалами, чтобы выбрать наиболее подходящий вариант фундамента и обеспечить надежность и долговечность строения.
Возможности для хранения и отдыха
Проект бани с гаражом предоставляет не только комфортное место для сауны и автомобиля, но и отличные возможности для хранения и отдыха. Благодаря наличию гаражной зоны, вы сможете удобно хранить инструменты, садовое оборудование, велосипеды и другие вещи, не занимая место в доме или на участке.
Кроме того, вы сможете обустроить место для отдыха и проведения досуга. Внутри гаражной зоны можно создать уютный уголок со столом, стульями или диваном, где можно почитать книгу, посмотреть фильм или провести вечер в компании друзей. Также можно организовать игровую зону или мастерскую для хобби.
Для хранения мелких предметов удобно использовать полки, ящики и вешалки, которые помогут поддерживать порядок и избежать скопления вещей. Дополнительные возможности для хранения могут быть предоставлены в виде небольшой кладовой комнаты или подвала.
Таким образом, проект бани с гаражом открывает широкие возможности для хранения инструментов и вещей, а также создания уютных мест для отдыха и проведения свободного времени.
| Преимущества | Описание |
|---|---|
| Хранение вещей | Возможность хранить инструменты, садовое оборудование, велосипеды и другие предметы |
| Место для отдыха | Возможность создать уютное место для чтения, просмотра фильмов или проведения вечера с друзьями |
| Игровая зона | Возможность организовать игровую зону для детей или мастерскую для хобби |
| Порядок и удобство | Использование полок, ящиков и вешалок для поддержания порядка и легкого доступа к вещам |
| Дополнительные возможности | Наличие кладовой комнаты или подвала для дополнительного хранения |
Отопление и вентиляция
Типы отопления
Для бани с гаражом подходят различные типы отопления: электрическое, дровяное или газовое. Выбор будет зависеть от ваших предпочтений, доступности топлива и возможности подключения к источнику энергии.
Электрическое отопление является наиболее удобным и простым в использовании, однако может быть затратным в эксплуатации из-за высокой цены на электроэнергию.
Дровяное отопление – традиционный и экологически чистый вариант, но требует постоянной загрузки дров и тщательного контроля температуры.
Газовое отопление может быть более экономичным в использовании, однако требует наличия газовой линии.
Система вентиляции
Для обеспечения качественной вентиляции в бане с гаражом рекомендуется установка специальных вентиляционных систем. Это позволит избежать скопления влаги, улучшит качество воздуха и снизит риск возникновения плесени.
| Тип вентиляции | Описание |
|---|---|
| Приточная вентиляция | Подача свежего воздуха извне с помощью вентилятора или системы принудительной приточной вентиляции. |
| Вытяжная вентиляция | Удаление загрязненного воздуха и излишков влаги через специальные вытяжные вентиляционные отверстия или систему принудительной вытяжной вентиляции. |
| Рекуперация тепла | Система, позволяющая использовать тепло отходящего воздуха для подогрева поступающего. |
Выбор типа вентиляции зависит от размеров и специфики помещения, а также предпочтений владельца.
Как выбрать проект бани с гаражом
1. Размеры и компоновка
Первым шагом в выборе проекта бани с гаражом является определение необходимого размера и компоновки сооружения. Подумайте, сколько автомобилей вам необходимо разместить в гараже, а также какую площадь вы хотели бы видеть для отдыха и парения в бане. Учтите возможности вашего участка и оставьте достаточно места для движения и хозяйственных нужд.
2. Материалы и технологии
Выбор материалов и технологии строительства является одним из ключевых моментов при выборе проекта. Здесь вам стоит обратить внимание на такие факторы, как долговечность, устойчивость к внешним воздействиям, энергоэффективность и экологичность. Рекомендуется выбирать проекты из качественных и проверенных материалов, которые обеспечат вам безопасность и долговечность вашей постройки.
Важно: Не забудьте также обратить внимание на вентиляцию и утепление бани и гаража, чтобы обеспечить комфортную температуру и сохранность ваших вещей.
3. Функциональные особенности
Каждый проект бани с гаражом предлагает свои функциональные особенности, которые могут варьироваться в зависимости от ваших пожеланий и потребностей. Подумайте, какие дополнительные элементы и функции вам были бы полезны. Например, это может быть душевая кабина, сауна, комната для отдыха, мастерская или место для хранения инструментов. Проанализируйте проекты с этой точки зрения и выберите тот, который лучше всего отвечает вашим потребностям.
Не торопитесь в выборе проекта бани с гаражом и обратите внимание на все детали, чтобы создать идеальное сооружение, которое будет радовать вас и вашу семью на многие годы!
Примеры реализованных проектов
Проект №1: Баня с гаражом в сельской местности
Этот проект представляет собой баню и гараж, объединенные в одном здании. Баня имеет две комнаты – парную и раздевалку, оборудованные всем необходимым для комфортного отдыха. Гараж предоставляет место для хранения автомобиля и дополнительное пространство для хозяйственных нужд.
Построенный из дерева, данный проект гармонично вписывается в окружающую сельскую местность и создает уютную атмосферу для отдыха и работы.
Проект №2: Современная баня-гараж в городском стиле
Этот проект предлагает сочетание современных технологий и стиля городского дизайна. Баня имеет просторную парную, комнату отдыха и санузел, а гараж предоставляет место для нескольких автомобилей.
Проект выполнен с использованием современных материалов, таких как стекло и металл, что создает элегантный и современный внешний вид. Внутренняя отделка выполнена с использованием натуральных материалов, что создает комфортную и уютную обстановку.
Проект №3: Близнецы — баня и гараж
Этот проект предлагает два отдельных здания – баню и гараж. Баня имеет просторную парную, комнату отдыха и просторную веранду. Гараж предоставляет место для хранения автомобиля и дополнительное пространство для хозяйственных нужд.
Данный проект предлагает две отдельные функциональные зоны, что позволяет гостям сосредоточиться на отдыхе и расслаблении в бане, а хозяевам – заниматься автомобилем и ремонтными работами в гараже.
Вопрос-ответ:
Какую площадь занимает проект бани с гаражом?
Какие материалы используются при строительстве проекта бани с гаражом?
Сколько времени занимает строительство проекта бани с гаражом?
Можно ли изменить проект бани с гаражом по своему усмотрению?
Какие преимущества имеет проект бани с гаражом?
Что такое проект бани с гаражом?
Как выбрать проект бани с гаражом?
Сколько стоит построить баню с гаражом?
Какие материалы лучше использовать при строительстве бани с гаражом?
Какие преимущества есть у бани с гаражом?
Где можно построить проект бани с гаражом?
Видео:
Баня из газобетона с мансардой 80 кв.м
Строительство гаража-мастерской и бани своими руками. Часть 1
-
Место под гараж -
Приватизация земли под гаражом – важные аспекты и правила -
Кирпичный гараж: преимущества и способы строительства



![Проект бани с гаражом [Гараж garazh]](/uploads/posts/proekt-bani-s-garazhom-dg2zebe4.jpg)





