Ворота гаражные чертежи: современные решения для вашего автомобиля
Содержание
- Ворота гаражные чертежи: Гаражные ворота в собственном гараже
- Первые шаги в построении гаражных ворот
- Выбор материала для гаражных ворот
- Основные типы гаражных ворот
- Как правильно проектировать гаражные ворота
- Важные детали гаражных ворот: замки и приводы
- Монтаж и установка гаражных ворот своими руками
- Технические требования к гаражным воротам
- Обслуживание и ремонт гаражных ворот
- Вопрос-ответ:
- Какой материал можно использовать для изготовления гаражных ворот?
- Какие типы гаражных ворот существуют?
- Как выбрать подходящий размер гаражных ворот?
- Как монтируются гаражные ворота?
- Какую систему открывания выбрать для гаражных ворот?
- Какие типы гаражных ворот существуют?
- Как выбрать подходящий вариант ворот для гаража?
- Можно ли самостоятельно изготовить гаражные ворота?
- Какие материалы используются для изготовления гаражных ворот?
- Видео:
Гараж – это не только место для хранения автомобиля, но и важная часть домашнего хозяйства. Чтобы обеспечить безопасность транспортного средства и создать удобные условия для его использования, необходимо выбрать правильные гаражные ворота. Чертежи гаражных ворот по-настоящему помогут вам создать идеальное решение для вашего гаража.
Главным критерием при выборе гаражных ворот является их функциональность и надежность. Гаражные ворота должны обеспечить легкую и плавную автоматическую или ручную открывание и закрывание, а также иметь высокую степень защиты от взлома. Поэтому чертежи гаражных ворот должны учитывать все эти требования и предлагать оптимальное решение для каждого конкретного случая.
Одним из наиболее популярных типов гаражных ворот являются секционные ворота. Они отличаются минимальным пространством, необходимым для их установки, и обеспечивают высокую степень изоляции и безопасности. Благодаря чертежам гаражных секционных ворот вы сможете учесть все особенности вашего гаража и выбрать оптимальное решение для вас.
Ворота гаражные чертежи: Гаражные ворота в собственном гараже
Гаражные ворота играют важную роль в безопасности и удобстве использования собственного гаража. Они не только защищают ваш автомобиль от кражи и внешних повреждений, но и предоставляют удобный доступ к гаражному пространству. В данном разделе мы рассмотрим чертежи гаражных ворот, которые помогут вам проектировать и строить ворота, соответствующие вашим потребностям и требованиям.
Типы гаражных ворот
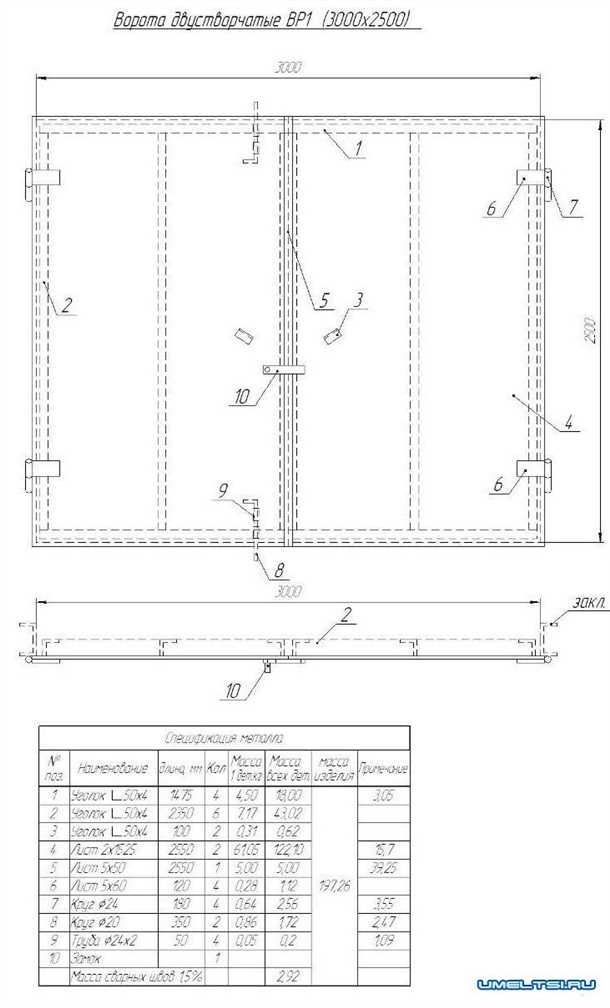
- Распашные ворота. Этот тип ворот состоит из двух половин, которые открываются в стороны подобно дверям. Распашные ворота требуют некоторого пространства перед гаражом для открытия.
- Секционные ворота. Самый популярный тип гаражных ворот, состоящий из горизонтальных секций, которые поднимаются под потолок при открытии. Секционные ворота позволяют максимально использовать пространство в гараже.
- Откатные ворота. Этот тип ворот скользит вдоль стены и занимает меньше пространства в гараже при открытии. Откатные ворота идеально подходят для узких гаражей.
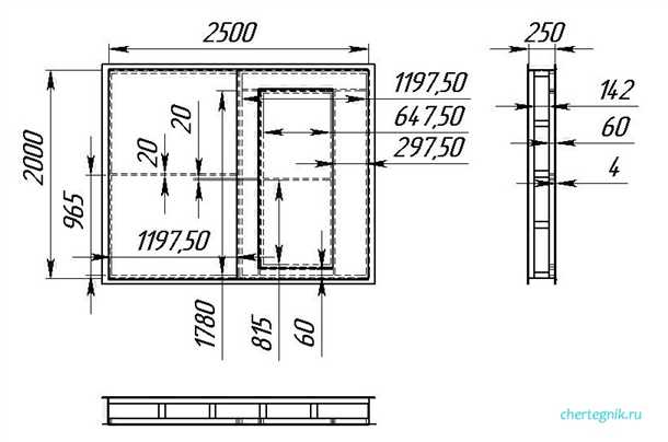
Чертежи гаражных ворот
Для строительства гаражных ворот необходимы точные чертежи, которые определяют размеры и конструкцию ворот. Чертежи должны содержать информацию о размерах отверстия для ворот, типе ворот, принципе их работы, материале и деталях конструкции.
При создании чертежей гаражных ворот необходимо учесть следующие факторы:
- Размеры гаражного отверстия. Перед началом проектирования гаражных ворот измерьте ширину и высоту гаражного отверстия.
- Материал ворот. Выберите материал ворот в зависимости от ваших предпочтений и бюджета. Популярные материалы для гаражных ворот включают сталь, алюминий и дерево.
- Механизм открытия ворот. Решите, какой механизм открытия ворот будет наиболее удобным для вас. Ручное открытие, открытие с помощью пульта дистанционного управления или автоматическое открытие с датчиками безопасности — выбор за вами.
Используя чертежи гаражных ворот, вы сможете точно спроектировать и построить ворота, которые будут соответствовать всем вашим требованиям и пожеланиям. Помните, что гаражные ворота — это важная часть вашего гаража, поэтому они должны быть надежными, безопасными и функциональными.
Первые шаги в построении гаражных ворот
Приступая к строительству гаражных ворот, важно иметь представление о необходимых шагах, которые помогут достичь желаемого результата. В этом разделе мы рассмотрим основные этапы, которые следует учесть при построении ваших гаражных ворот.
- Определите тип ворот. Существует несколько различных типов гаражных ворот, таких как откатные, распашные, подъемные и секционные ворота. Выбор типа ворот зависит от ваших предпочтений и особенностей гаража.
- Измерьте размеры гаражного проема. Правильные измерения гаражного проема позволят вам выбрать и установить правильный размер ворот. Важно учесть все параметры, такие как высоту, ширину и глубину гаража.
- Выберите материалы. Гаражные ворота могут быть изготовлены из различных материалов, таких как дерево, сталь, алюминий или пластик. Выбор материала зависит от ваших предпочтений, стиля вашего дома и степени защиты, которую вы хотите получить.
- Подготовьте необходимые инструменты и материалы. Для строительства гаражных ворот вам потребуются различные инструменты, такие как электродрель, пилы, отвес, угольник и др. Также вам понадобятся материалы, такие как воротные панели, рамы, крепежные элементы и др.
- Постройте фундамент и раму. Фундамент и рама будут служить основой вашим гаражным воротам. Важно следовать инструкциям и использовать правильные методы строительства.
- Установите воротные панели и механизм открывания. Установка воротных панелей и механизма открывания должна проводиться с учетом всех инструкций производителя и с осторожностью, чтобы обеспечить безопасность и правильную работу ворот.
- Протестируйте и настройте ворота. После установки следует протестировать и настроить гаражные ворота, чтобы убедиться, что они работают должным образом и соответствуют вашим требованиям.
Следуя этим шагам, вы сможете успешно построить гаражные ворота, которые будут функциональными и эстетически привлекательными.
Выбор материала для гаражных ворот
При выборе материала для гаражных ворот необходимо учитывать не только эстетический аспект, но и надежность, долговечность и стоимость конструкции.
Наиболее распространенными материалами для гаражных ворот являются металл, дерево и пластик. Каждый из них имеет свои преимущества и недостатки, поэтому решение следует принимать исходя из индивидуальных потребностей.
Металлические ворота отличаются высокой прочностью и устойчивостью к механическим повреждениям. Они являются самым надежным вариантом и обеспечивают хорошую защиту гаражного помещения. Однако металлические ворота требуют регулярного обслуживания и защиты от коррозии.
Деревянные ворота придают гаражу особый шарм и элегантность. Они имеют хорошую звуко- и теплоизоляцию, что особенно важно, если гараж используется для других целей, кроме хранения автомобиля. Однако деревянные ворота требуют регулярного покраски и обработки специальными составами для защиты от гниения и вредителей.
Пластиковые ворота обладают высокими эксплуатационными характеристиками и не требуют особого ухода. Они имеют хорошую тепло- и звукоизоляцию, а также устойчивы к воздействию влаги и УФ-излучения. Однако пластиковые ворота имеют ограниченный выбор цветовых решений.
Выбор материала для гаражных ворот зависит от ваших предпочтений, а также особенностей эксплуатации и климатических условий, в которых находится гараж. При правильном выборе материала вы сможете создать надежные и функциональные ворота, которые будут долгие годы служить вам.
Основные типы гаражных ворот
Распашные ворота
Распашные ворота являются наиболее распространенным и простым в использовании типом гаражных ворот. Они состоят из двух створок, которые открываются наружу и закрываются в центре. Распашные ворота могут быть сделаны из различных материалов, таких как дерево, металл или пластик. Они отличаются долговечностью и простотой в установке. Однако, для полного открытия распашных ворот требуется достаточно места перед гаражом.
Секционные ворота
Секционные ворота состоят из нескольких секций, которые поднимаются вертикально вверх и затем горизонтально укладываются под потолок гаража. Это позволяет сэкономить пространство перед гаражом и внутри самого гаража. Секционные ворота обеспечивают отличную теплоизоляцию и звукоизоляцию, а также имеют высокий уровень безопасности благодаря механизму автоматического закрытия.
| Тип ворот | Преимущества | Недостатки |
|---|---|---|
| Распашные ворота | Простота в использовании Долговечность | Требуется место для открытия |
| Секционные ворота | Экономия пространства Тепло- и звукоизоляция Высокий уровень безопасности | Более сложная установка |
Как правильно проектировать гаражные ворота
Первым шагом при проектировании гаражных ворот является выбор идеального типа ворот, соответствующего размеру и стилю гаража. Существует несколько основных типов ворот: откатные, распашные, секционные и подъемные. Каждый тип имеет свои преимущества и недостатки, поэтому важно выбрать наиболее подходящий вариант.
При проектировании гаражных ворот также необходимо учесть размеры открытия, высоту потолка, а также особенности территории. Установка ворот должна быть безопасной и удовлетворять всем нормам и требованиям. Также важно учесть возможность автоматизации ворот, что сильно облегчит пользование и увеличит комфорт.
Одним из важных аспектов при проектировании гаражных ворот является выбор материала. Ворота могут быть изготовлены из различных материалов, таких как сталь, дерево, алюминий и пластик. Каждый материал имеет свои преимущества и особенности, поэтому необходимо выбрать материал, который лучше всего подходит для конкретных условий.
Дополнительно, рекомендуется учесть дополнительные элементы, такие как встроенные окна или вентиляционные отверстия, которые могут улучшить функциональность и внешний вид гаражных ворот. Также важно обратить внимание на качество и надежность выбранного производителя ворот, чтобы быть уверенным в долговечности и эффективности их работы.
В итоге, правильное проектирование гаражных ворот — это ключевой фактор для обеспечения безопасности и комфорта при эксплуатации гаража. С учетом всех необходимых факторов, выбор подходящего типа и материала ворот, а также установка их согласно всем требованиям, можно создать идеальные гаражные ворота, которые будут служить надежно и долго.
Важные детали гаражных ворот: замки и приводы
Замки для гаражных ворот
Замки для гаражных ворот играют важную роль в обеспечении безопасности. Главной задачей замка является предотвращение несанкционированного доступа. Существуют различные типы замков:
- Цилиндровые замки: это наиболее распространенный тип замков для гаражных ворот. Они обеспечивают надежную защиту и могут быть легко заменены при необходимости.
- Электромеханические замки: эти замки работают от электрического привода и обеспечивают дополнительный уровень безопасности. Они могут быть управляемыми изнутри гаража или с помощью пульта дистанционного управления.
Приводы для гаражных ворот
Приводы для гаражных ворот позволяют автоматизировать открывание и закрывание ворот, делая использование гаража еще более удобным. В зависимости от типа и веса ворот, можно выбрать различные типы приводов:
- Цепные приводы: эти приводы используют цепи и шестерни для открывания и закрывания ворот. Они подходят для гаражных ворот большого размера и обеспечивают надежную работу.
- Ременные приводы: такие приводы используют ремни из прочных материалов, чтобы открыть и закрыть ворота. Они работают более тихо и подходят для гаражей с небольшими воротами.
- Шестеренчатые приводы: эти приводы используют шестерни для движения ворот. Они часто используются для гаражных ворот большого размера и обеспечивают плавное открытие и закрытие ворот.
Выбор замков и приводов для гаражных ворот зависит от ваших потребностей. Важно учесть размеры и вес ворот, уровень безопасности, уровень шума и желаемый уровень автоматизации.
Монтаж и установка гаражных ворот своими руками
Шаг 1: Подготовка
Перед установкой гаражных ворот важно правильно подготовиться. Внимательно изучите инструкцию по монтажу, чтобы понять, какие инструменты и материалы вам понадобятся. Убедитесь, что у вас есть все необходимое перед началом работ.
Шаг 2: Установка рамы
Первым шагом является установка рамы ворот. Следуйте инструкции производителя для правильной установки рамы. Обычно это включает в себя закрепление боковых стоек, а также крепление линейных направляющих.
Шаг 3: Установка створок ворот
Получив установленную раму, следующий шаг — установка самих створок ворот. При необходимости, привлеките помощников, чтобы упростить эту задачу. Установите створки в раму, следуя инструкции производителя, и закрепите их с помощью стропильного крепления.
Шаг 4: Установка привода и системы управления
После установки створок ворот можно перейти к установке привода и системы управления. Внимательно прочитайте инструкцию по установке привода и следуйте указаниям производителя. Подключите привод к электрической сети и настройте систему управления в соответствии с вашими потребностями.
Следуя этим шагам, вы сможете установить гаражные ворота своими руками без особых сложностей. Убедитесь, что весь процесс монтажа проводится безопасно и соблюдаются все инструкции производителя. Если вы чувствуете, что задача требует профессиональных навыков или опыта, лучше обратиться к специалистам. Удачного монтажа!
Технические требования к гаражным воротам
Первое требование – это максимальная герметичность и водонепроницаемость ворот. Ворота должны обеспечивать надежным защиту автомобиля от внешних атмосферных воздействий, таких как дождь, снег и пыль. Для этого рекомендуется выбирать ворота с уплотнительными резиновыми прокладками и специальными погодозащитными покрытиями.
Второе требование – это прочность и устойчивость к механическим воздействиям. Ворота должны быть выполнены из прочного и надежного материала, способного выдерживать нагрузки во время открывания и закрывания. Кроме того, необходимо учесть возможность установки дополнительных элементов, таких как электроприводы и системы безопасности.
Третье требование – это легкость в эксплуатации. Ворота должны быть удобными в использовании, что позволит владельцу без проблем открывать и закрывать ворота. Для этого ширина ворот должна быть достаточной для пропуска автомобиля, а система управления должна быть простой и надежной.
Наконец, четвертое требование – это безопасность использования. Ворота должны быть оборудованы специальными системами безопасности, которые исключают возможность травмирования человека или повреждения автомобиля. К таким системам относятся фотоэлементы, предохранители и системы автоматической остановки при обнаружении препятствий.
Соблюдение данных технических требований позволит выбрать и установить качественные гаражные ворота, которые будут служить надежно и долгое время.
Обслуживание и ремонт гаражных ворот
1. Проверяйте систему безопасности:
Периодически проверяйте работу датчиков безопасности, чтобы убедиться, что они функционируют должным образом. Убедитесь, что датчики не заблокированы посторонними предметами и находятся в правильном положении.
2. Смазывайте механизмы:
Смазывание механизмов гаражных ворот является неотъемлемой частью регулярного обслуживания. Используйте специализированные смазки для ворот и следуйте инструкциям производителя. Смазывайте валы, петли и все движущиеся части для уменьшения трения и износа.
3. Проверяйте крепления:
Регулярно проверяйте крепления ваших гаражных ворот и затягивайте их при необходимости. Возможно, потребуется заменить растянувшиеся или поврежденные крепления.
4. Проверяйте уплотнения:
Проверяйте состояние и надежность уплотнительных резиновых полос на воротах. Если уплотнители стали слабыми или поврежденными, установите новые для сохранения тепла и предотвращения проникновения влаги внутрь гаража.
5. Регулярно очищайте ворота:
Регулярно очищайте поверхность вашего гаражного ворота от пыли, грязи и других загрязнений. Используйте мягкую тряпку или щетку для удаления грязи и пятен. Это поможет сохранить ворота в хорошем состоянии и предотвратить их коррозию.
Заключение
Регулярное обслуживание и ремонт гаражных ворот позволит вам избежать серьезных проблем в будущем и продлит срок их службы. Следуйте рекомендациям производителя и обращайтесь к специалистам в случае необходимости. Помните, что правильное обслуживание поможет сохранить ваши гаражные ворота в идеальном состоянии.
Вопрос-ответ:
Какой материал можно использовать для изготовления гаражных ворот?
Какие типы гаражных ворот существуют?
Как выбрать подходящий размер гаражных ворот?
Как монтируются гаражные ворота?
Какую систему открывания выбрать для гаражных ворот?
Какие типы гаражных ворот существуют?
Как выбрать подходящий вариант ворот для гаража?
Можно ли самостоятельно изготовить гаражные ворота?
Какие материалы используются для изготовления гаражных ворот?
Видео:
Самодельные подъемные ворота своими руками. Подробно
Самые лучшие ПОДЪЁМНЫЕ ворота в мире. The best gates (garage doors) in the world
Amazing Gates And Doors — Ideas That Are At Another Level
-
Место под гараж -
Приватизация земли под гаражом – важные аспекты и правила -
Кирпичный гараж: преимущества и способы строительства








