Перекачивающий насос в квартиру для канализации — разновидности и стоимость
Содержание
- Роль перекачивающего насоса в квартире
- Как он функционирует в канализационной системе
- Виды перекачивающих насосов для квартиры
- Насосы с погружным исполнением
- Насосы поверхностного типа
- Выбор и установка перекачивающего насоса в квартире
- Как выбрать насос в зависимости от объема канализации
- Процесс установки насоса в квартире
- Стандартные характеристики перекачивающих насосов для квартиры
- Производительность и подъемная высота
- Вопрос-ответ:
- Какую функцию выполняет перекачивающий насос в квартире?
- Какие виды перекачивающих насосов для квартир существуют?
- Как выбрать подходящий перекачивающий насос для квартиры?
- Как производится установка перекачивающего насоса в квартире?
- Какова примерная цена перекачивающего насоса для квартиры?
- Какие виды перекачивающих насосов для канализации существуют?
- Как выбрать подходящий перекачивающий насос для канализации?
- Какая цена на перекачивающий насос для канализации в квартиру?
- Какую функцию выполняет перекачивающий насос для канализации в квартире?
- Как установить перекачивающий насос для канализации в квартире?
- Какой перекачивающий насос лучше выбрать для канализации в квартире?
- Видео:
Перекачивающий насос в квартиру для канализации – это незаменимое устройство для загородного дома или дачи, где отсутствует возможность подключения канализационной сети. Этот насосный аппарат позволяет эффективно и гигиенически осуществлять сброс сточных вод в канализационную систему. В данной статье мы рассмотрим различные типы перекачивающих насосов, их преимущества и ценовой диапазон.
Перекачивающий насос в квартиру для канализации – это специальное оборудование, которое способно перекачивать сточные воды на определенную высоту и дистанцию. Такие насосы особенно актуальны в домах, где канализационная система расположена ниже уровня санитарных приборов, например, подвала или мансарды. Они используются для откачивания сточных вод из мест, где нет возможности подключения канализационного стока. В настоящее время перекачивающие насосы работают на основе электрического привода и давно заменили устаревшие механические устройства.
При выборе перекачивающего насоса необходимо учитывать несколько факторов: необходимую высоту подъема, длину горизонтального переброса сточных вод, их объем, а также наличие дополнительных требований, например, автоматической подачи воды в унитаз. Существует несколько типов перекачивающих насосов: дренажные, скважинные и бытовые. Различные типы насосов подходят для разных условий эксплуатации, имеют свои особенности и ограничения.
Роль перекачивающего насоса в квартире
Принцип работы
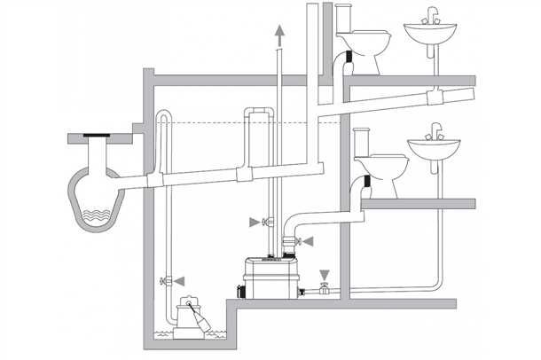
Перекачивающий насос для квартиры работает на простом принципе перекачки стоков от низшей точки системы до высшей точки, откуда они затем попадают в главный канализационный колодец или внешнюю канализацию.
На входе перекачивающего насоса могут быть подключены сантехнические приборы, такие как душ, раковина, унитазы и стиральная машина. Насос подает специальное давление, которое позволяет стокам перебороть гравитацию и подняться вверх.
Преимущества
Использование перекачивающего насоса в квартире имеет свои преимущества:
| 1. | Возможность создания канализационной сети в квартире без гравитационного и приточного уклона. |
| 2. | Позволяет установить сантехнические приборы даже в отдаленных частях квартиры. |
| 3. | Обеспечивает надежное и эффективное отведение стоков без образования засоров и запахов. |
| 4. | Позволяет решить проблемы, связанные с низким уровнем канализационного колодца и препятствиями на пути канализационных труб. |
Цена перекачивающего насоса для квартиры зависит от его мощности, различных функций и бренда производителя. Но в любом случае, приобретение и установка такого насоса позволит обеспечить комфорт и безопасность вашему домашнему хозяйству.
Как он функционирует в канализационной системе
Перекачивающий насос в канализационной системе выполняет важную роль, обеспечивая эффективную транспортировку сточных вод.
Когда сточная вода поступает в насосную емкость, уровень жидкости поднимается и достигает определенной отметки. Когда это происходит, система включает насос, который работает на электрическую энергию. Насос всасывает сточную воду и перекачивает ее по трубам с помощью давления.
Важно отметить, что перекачивающий насос не просто перекачивает сточные воды, но также может размалывать твердые отходы и предотвращать их слипание с помощью встроенного измельчителя. Такой механизм обеспечивает свободный проток сточных вод и предотвращает засорение труб и насоса.
Эффективность работы насоса обеспечивается за счет автоматического включения и выключения. Когда уровень сточной воды достигает определенного значения, насос автоматически включается, а когда уровень снижается, насос автоматически выключается. Это позволяет экономить энергию и продлевает срок службы насоса.
Важно отметить, что перекачивающий насос должен устанавливаться и обслуживаться профессионалами, чтобы гарантировать его эффективность и безопасность. Неправильная установка или обслуживание может привести к неполадкам и авариям, а также повредить канализационную систему.
Виды перекачивающих насосов для квартиры
Перекачивающие насосы представляют собой устройства, которые используются для перекачки сточных вод из канализационных труб и систем в помещении. Существует несколько типов таких насосов, каждый из которых предназначен для определенных условий и требований.
Рассмотрим основные виды перекачивающих насосов для квартир:
- Дренажные насосы: данная категория насосов используется для откачки чистой воды, такой как дождевая вода, вода из колодца или сточная вода, не содержащая загрязнений. Они могут использоваться для перекачки воды из подвалов, между этажами и других мест, где нет возможности использовать гравитационную систему канализации.
- Фекальные насосы: этот тип насосов используется для перекачки сточных вод, содержащих загрязнения, таких как туалетная бумага, фекалии, масла и прочие отходы. Фекальные насосы обычно имеют различные функции, такие как измельчение твердых частиц и автоматическая защита от засорения.
- Мелкопузырчатые насосы: эти насосы используются для очистки сточных вод, содержащих нефтепродукты. Они способны удалить масла, жиры и другие загрязнения из сточных вод, превращая их в мелкие пузырьки, которые уже легко удаляются системой канализации.
Выбор перекачивающего насоса должен быть основан на типе сточных вод, которые будут перекачиваться, а также на требованиях и условиях определенного помещения. Имейте в виду, что установка насоса для канализации в квартире должна осуществляться профессионалами, чтобы избежать возможных проблем и соблюсти все нормы и правила безопасности.
Насосы с погружным исполнением
Основным принципом работы насосов с погружным исполнением является создание давления, которое позволяет перекачивать сточные воды вверх по системе канализации в квартиру. В зависимости от типа использования, такие насосы могут быть как одноступенчатыми, так и многоступенчатыми, что позволяет регулировать объем перекачиваемой жидкости.
Одним из преимуществ насосов с погружным исполнением является их компактность. Благодаря погружному исполнению, устройства не занимают много места и могут быть установлены в самых ограниченных пространствах. Кроме того, такие насосы отличаются высокой мощностью и низким уровнем шума, что делает их более комфортными в использовании.
Применение насосов с погружным исполнением
Насосы с погружным исполнением находят широкое применение как в квартирах и частных домах, так и в коммерческих и промышленных объектах. Они используются для перекачки сточных вод из различных источников, таких как унитазы, душевые кабины, раковины и прочие сантехнические приборы.
Насосы с погружным исполнением также могут использоваться для перекачки сточных вод из подвалов и подземных помещений, где невозможна установка традиционных систем канализации. Благодаря своей мобильности и высокой производительности, такие насосы становятся незаменимыми при ремонте и строительстве объектов, где требуется временная система канализации.
Цены на насосы с погружным исполнением
Цена на насосы с погружным исполнением зависит от их мощности, производительности и дополнительных функций. В среднем, стоимость таких насосов может варьироваться от 3000 до 15000 рублей. Стоит отметить, что качественные насосы с погружным исполнением гарантируют надежную и безопасную работу на длительный срок, поэтому при выборе стоит обратить внимание на отзывы покупателей и репутацию производителя.
Насосы поверхностного типа
Насосы поверхностного типа предназначены для перекачивания сточных вод с поверхности на небольшое расстояние. Они используются в случаях, когда необходимо подъем или перекачка сточных вод с низкими концентрациями загрязнений.
Принцип работы
Насосы поверхностного типа работают на основе принципа перемещения жидкости через открытые ванны с помощью вращающегося элемента. При вращении элемента смеситель перемалывает твердые частицы, разбивает их на более мелкие и перемешивает их с жидкостью. Затем перемешанная жидкость с твердыми частицами подается на поверхность и перекачивается в систему канализации или другой приемник.
Преимущества
Насосы поверхностного типа обладают несколькими преимуществами:
| 1. Простота использования и эксплуатации. |
| 2. Малые размеры и компактность, что позволяет установить их практически в любом месте. |
| 3. Можно использовать для перекачивания сточных вод с низкими концентрациями загрязнений, также как и для перекачки обычной бытовой воды. |
Стоимость насосов поверхностного типа зависит от их мощности, производительности и дополнительных функций. В среднем, цена начинается от 5000 рублей и может достигать нескольких десятков тысяч рублей.
Выбор и установка перекачивающего насоса в квартире
Однако перед тем, как выбрать и установить перекачивающий насос, необходимо определиться с несколькими важными факторами.
1. Тип насоса
На рынке представлено несколько типов перекачивающих насосов для квартирной канализации. Среди самых распространенных – вихревые и дренажные насосы.
Вихревые насосы характеризуются высокой производительностью и способностью перекачивать смеси с различными включениями, такими как туалетная бумага и песок. Дренажные насосы подходят для минимального количества отходов, но компактны и легко монтируются.
2. Производительность
Определение производительности перекачивающего насоса играет ключевую роль при его выборе. Она зависит от объема сточных вод, который необходимо перекачивать ежедневно. Определите количественные показатели и выберите насос, обеспечивающий достаточную производительность для ваших потребностей.
Важно помнить: перекачивающий насос будет более эффективен, если его производительность будет немного превышать необходимый объем перекачки.
3. Установка насоса
Установка перекачивающего насоса в квартире требует соблюдения нескольких правил. Насос следует размещать в специальном колодце либо в отдельном помещении, предназначенном для канализации. Это позволит избежать проблем с доступом для обслуживания и ремонта.
Также необходимо придерживаться правил электромонтажа и обеспечить безопасность при установке насоса.
В итоге, правильный выбор и установка перекачивающего насоса в квартире для канализации гарантируют эффективное и бесперебойное функционирование системы водоотведения.
Необходимо помнить, что установку насоса рекомендуется доверить профессионалам.
Как выбрать насос в зависимости от объема канализации
Выбор насоса для канализации в квартире напрямую зависит от объема сточных вод, который требуется перекачать. В данном разделе мы рассмотрим основные факторы, которые следует учесть при выборе насоса.
1. Определите объем сточных вод, которые нужно перекачать
Первым шагом в выборе перекачивающего насоса для канализации в квартире является определение объема сточных вод. Для этого оцените количество воды, которое образуется в вашей квартире в сутки. Учтите все источники сточных вод, такие как туалет, душ, раковины и т.д. Это позволит вам определить минимально необходимую производительность насоса.
2. Учтите вертикальную и горизонтальную дистанцию
Помимо объема сточных вод, важно также учесть вертикальную и горизонтальную дистанцию, на которую нужно перекачать сточные воды. Каждый насос имеет свои характеристики по подъему воды и перекачиванию на определенное расстояние. Убедитесь, что выбранный вами насос соответствует требуемым характеристикам.
3. Обратите внимание на дополнительные функции
При выборе насоса для канализации также стоит обратить внимание на дополнительные функции, которые могут быть полезными в конкретных условиях. Например, насосы с измельчителями упрощают перекачку сточных вод, содержащих твердые частицы. Также стоит проверить наличие системы предотвращения засоров, которая увеличивает надежность работы насоса.
В зависимости от этих факторов выбирайте насос, который наиболее соответствует вашим потребностям. Помните, что правильный выбор насоса обеспечит эффективную и бесперебойную работу системы канализации в вашей квартире.
Процесс установки насоса в квартире
1. Подбор и закупка необходимого оборудования
- Перед установкой насоса нужно подобрать подходящую модель, учитывая требуемую производительность и технические характеристики.
- Приобретите все необходимые компоненты: насос, переходники, трубы и фитинги.
2. Выбор места установки
Выберите наиболее подходящее место для установки насоса, учитывая следующие факторы:
- Доступность канализационной системы.
- Размеры и шумовые характеристики насоса.
- Необходимость обеспечения вентиляции и слива конденсата.
3. Установка насоса
Следуйте указаниям производителя для установки насоса. Обычно процесс установки включает следующие шаги:
- Произведите монтаж насоса на специальное основание или подставку.
- Подключите входные и выходные трубы насоса, используя соединительные фитинги и герметики.
- Подключите электропитание к насосу.
- Установите клапаны, предохранительные устройства и другие необходимые компоненты.
4. Проведение испытаний и наладка
После установки насоса, проведите испытания, чтобы проверить его работоспособность. Убедитесь, что насос правильно перекачивает стоки и не возникает утечек.
При необходимости внесите корректировки и настройте насос для оптимальной работы.
Обратите внимание, что для установки насоса в квартире необходимы знания о сантехнических работах и следование инструкциям производителя. Если вы не уверены в своих навыках, лучше обратиться к профессионалам для выполнения работ.
Стандартные характеристики перекачивающих насосов для квартиры
Объем перекачки
Одной из важных характеристик насоса является его объем перекачки. Он определяет, сколько литров сточной воды насос может обработать за определенный промежуток времени. Обычно этот параметр указывается в литрах в минуту или в час. Выбирая насос для квартиры, необходимо учитывать объем загрязнений, которые будут поступать в систему канализации, чтобы насос мог справиться с этой нагрузкой.
Мощность
Мощность насоса определяет его производительность. Чем выше мощность, тем больше сточной воды насос может обработать за определенное время. Мощность измеряется в ваттах или киловаттах. При выборе насоса для квартиры следует учитывать количество жильцов и тип используемой сантехники, чтобы подобрать насос с достаточной мощностью для обработки сточных вод.
Производительность и подъемная высота
При выборе перекачивающего насоса для канализации в квартире важно учитывать его производительность и подъемную высоту. Производительность насоса определяет количество воды и отходов, которое он способен перекачать за определенное время. Чем выше производительность, тем быстрее и более эффективно будет осуществляться отвод сточных вод из квартиры.
Подъемная высота насоса определяет, на какую высоту он способен поднимать воду и отходы. Это особенно важно для квартир, расположенных на нижних этажах многоэтажных зданий, где не всегда возможно использование гравитационного способа отвода сточных вод. Чем выше подъемная высота насоса, тем больше возможностей у его владельца при реализации различных сантехнических решений.
При выборе перекачивающего насоса важно учесть производительность и подъемную высоту, соответствующие особенностям конкретной квартиры и ее потребностям в отводе сточных вод.
Вопрос-ответ:
Какую функцию выполняет перекачивающий насос в квартире?
Какие виды перекачивающих насосов для квартир существуют?
Как выбрать подходящий перекачивающий насос для квартиры?
Как производится установка перекачивающего насоса в квартире?
Какова примерная цена перекачивающего насоса для квартиры?
Какие виды перекачивающих насосов для канализации существуют?
Как выбрать подходящий перекачивающий насос для канализации?
Какая цена на перекачивающий насос для канализации в квартиру?
Какую функцию выполняет перекачивающий насос для канализации в квартире?
Как установить перекачивающий насос для канализации в квартире?
Какой перекачивающий насос лучше выбрать для канализации в квартире?
Видео:
Вечная канализация БЕЗ ОТКАЧКИ! Проверена годами на практике
Монтаж канализации своими руками. Ошибки и решения. #24
Санитарные насосы для кухни: особенности сборки и эксплуатации // FORUMHOUSE
-
Насос джамбо — самое мощное оборудование для перекачки жидкостей -
Применение насосов в системах водоснабжения — особенности выбора и преимущества -
Как самостоятельно разобрать и собрать водяной насос — подробная инструкция с фото и пошаговая расписка













