Принцип работы и основные компоненты насосной станции — изучаем схемы, функциональность и заводские агрегаты
Содержание
- Что такое насосная станция?
- Принцип работы насосной станции
- Компоненты насосной станции
- Выбор и расчет насосной станции
- Установка и подключение насосной станции
- Техническое обслуживание насосной станции
- Преимущества использования насосной станции
- Примеры применения насосных станций
- Вопрос-ответ:
- Что такое насосная станция?
- Какие функции выполняет насосная станция?
- Какие компоненты входят в состав насосной станции?
- Как выбрать насосную станцию подходящего типа?
- Как осуществляется обслуживание насосной станции?
- Что такое насосная станция?
- Какие основные компоненты входят в схему насосной станции?
- Зачем нужны насосы в схеме насосной станции?
- Как происходит управление насосной станцией?
- Для чего нужны фильтры в схеме насосной станции?
- Видео:
Схема насосной станции — это ключевой элемент системы водоснабжения и водоотведения, который обеспечивает подачу и откачку воды. Насосы и насосные станции Nasos представляют собой комплексное решение для эффективного функционирования схемы насосной станции.
Насосы играют важную роль в системах водоснабжения, их задача — перемещать воду из одного места в другое. Высокая мощность и производительность насосов позволяет поддерживать стабильный поток воды в системе. Таким образом, насосы обеспечивают надежную и эффективную работу схемы насосной станции.
Насосные станции Nasos разработаны с учетом современных технологий и требований энергосбережения. Они обеспечивают автоматический контроль и регулировку давления, а также защиту от перегрузок и аварийных ситуаций. Благодаря своей компактности и функциональности, насосные станции Nasos являются универсальным решением для различных объектов, включая дома, офисы, промышленные предприятия и многочисленные инфраструктурные системы.
Использование насосов и насосных станций Nasos обеспечивает надежность и эффективность работы системы водоснабжения и водоотведения. Это позволяет сократить энергопотребление, снизить эксплуатационные расходы и обеспечить комфортное использование воды в повседневной жизни.
Что такое насосная станция?
Главная задача насосной станции заключается в создании необходимого давления и перемещении жидкости из одного места в другое. Это может быть перекачка воды из скважины в емкость, подача воды в систему отопления или подача топлива в котел.
На насосную станцию возлагаются высокие требования – она должна быть надежной, эффективной и экономичной. При правильном выборе и эксплуатации насосной станции можно добиться оптимального режима работы, минимизации энергозатрат и обеспечения длительного срока службы.
В зависимости от предназначения и характеристик, насосные станции делятся на разные типы – от простых домашних до сложных промышленных. Зачастую они используются в системах водоснабжения и отопления, в промышленности, сельском хозяйстве и других сферах деятельности.
- Основные компоненты насосной станции:
- Насос – один или несколько, в зависимости от конкретной задачи.
- Электродвигатель – генерирует энергию для работы насосов.
- Распределительный аппарат – обеспечивает правильное распределение жидкости.
- Автоматическая система управления – контролирует и регулирует работу насосов.
- Система сбора и обработки данных – отслеживает и фиксирует параметры работы станции.
Современные насосные станции обладают высокой производительностью, эффективностью и автоматизацией работы. Они позволяют решать различные технические задачи, связанные с перекачкой и подачей жидкостей, обеспечивая удобство и комфорт в использовании.
Принцип работы насосной станции
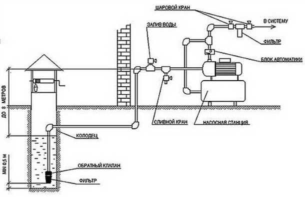
Основными компонентами насосной станции являются насосы и резервуары. Насосы предназначены для преодоления сопротивления и перекачивания воды. Резервуары, в свою очередь, служат для хранения перекаченной воды.
Процесс работы
Процесс работы насосной станции начинается с включения насосов. Когда насосы начинают работать, они подаются воду в систему. Давление в системе возрастает, и вода начинает двигаться через трубы в нужном направлении.
При достижении заданного уровня давления, насосы автоматически отключаются, а вода продолжает двигаться по системе из-за накопленного давления. Когда давление в системе снижается до определенного уровня, насосы вновь включаются для поддержания необходимого давления.
Контроль и обслуживание
Процесс работы насосной станции контролируется и регулируется различными системами. Для обеспечения безопасности и эффективности работы насоса, могут быть установлены датчики давления, уровня воды и другие системы контроля.
Обслуживание насосной станции предполагает проверку и очистку насосов, а также контроль параметров работы. Регулярная поддержка насосной станции обеспечивает надежность и длительный срок службы системы водоснабжения.
Компоненты насосной станции
На насосной станции присутствуют различные компоненты, выполняющие определенные функции. Рассмотрим основные из них:
Насос
Насос является главным компонентом насосной станции. Он отвечает за подачу жидкости из источника в нужное место. Насосы классифицируются по мощности, типу двигателя и типу насосного оборудования.
Бак
Бак предназначен для хранения жидкости, которую подает насос. Бак имеет определенный объем и может быть изготовлен из различных материалов, таких как металл или пластик.
Регулятор давления
Регулятор давления контролирует и поддерживает определенное значение давления в системе. Он регулирует работу насоса и обеспечивает стабильность подачи жидкости.
Фильтр
Фильтр очищает жидкость от механических примесей, которые могут находиться в ней. Это помогает защитить насос и другие компоненты насосной станции от износа и повреждений.
Клапаны
Клапаны контролируют поток жидкости в системе. Они позволяют предотвратить обратный поток жидкости и обеспечивают правильное направление подачи.
Датчики
Датчики используются для контроля параметров работы насосной станции, таких как уровень жидкости в баке или давление в системе. Они отправляют сигналы насосу или другим компонентам для оптимальной работы.
- Манометр – измеряет давление в системе.
- Уровнемер – определяет уровень жидкости в баке.
Важно правильно подбирать компоненты насосной станции в зависимости от конкретных требований и условий эксплуатации.
Выбор и расчет насосной станции
Основные параметры, которые необходимо учесть при выборе насосной станции:
| Параметр | Описание |
|---|---|
| Расход | Необходимо определить требуемый расход воды или жидкости в системе. Он зависит от потребностей пользователей и объема потребления. |
| Давление | Требуемое давление в системе зависит от высоты подачи воды или жидкости и требований пользователей. |
| Мощность | Мощность насоса должна быть достаточной для обеспечения нужного расхода и давления в системе. |
| Материал насоса | Материал, из которого сделан насос, должен быть совместимым с перекачиваемой жидкостью. |
После определения параметров можно приступать к расчету насосной станции. Для этого используют различные формулы и методики, принимая во внимание особенности конкретной системы и требования к ее работе.
Расчет насосной станции включает определение типа и мощности насоса, объема емкости, необходимости использования дополнительных компонентов и другие аспекты. Важно учесть также возможность регулировки и автоматизации работы системы.
Правильный выбор и расчет насосной станции позволяет обеспечить эффективную и надежную работу системы водоснабжения или отопления, учитывая требования пользователей и особенности конкретной задачи.
Установка и подключение насосной станции
Для установки насосной станции необходимо провести следующие работы:
- Выбрать подходящее место для установки насосной станции.
- Обеспечить прямой доступ к источнику воды.
- Установить насосную станцию на плоскую и устойчивую поверхность.
- Подключить электропитание к насосной станции согласно инструкции производителя.
- Подключить входной и выходной трубопроводы к насосной станции.
- Установить запорные клапаны на трубопроводах для управления потоком воды.
- Проверить герметичность трубопроводов и наличие утечек.
Установка насосной станции должна осуществляться в соответствии с указаниями производителя и с соблюдением всех безопасностных мер.
| Компонент | Подключение |
|---|---|
| Входной трубопровод | Подключается к источнику воды, обеспечивая приток воды в насосную станцию. |
| Выходной трубопровод | Подключается к системе или потребителю воды для распределения подачи воды. |
| Электропитание | Проводится подключение к насосу с использованием соответствующего провода и штепсельной вилки. |
Важно помнить, что установка и подключение насосной станции требует определенных знаний и навыков. Если у вас нет опыта, рекомендуется обратиться к специалистам для выполнения всех необходимых работ.
Техническое обслуживание насосной станции
Проверка электрооборудования
Важной частью технического обслуживания насосной станции является проверка электрооборудования. Все электрические контакты, соединения и провода должны быть в исправном состоянии. Регулярная проверка предотвращает возможные неполадки и гарантирует безопасность работы насосной станции.
Проверка насосов и системы трубопроводов
Важной частью технического обслуживания насосной станции является проверка насосов и системы трубопроводов. Все насосы должны быть проверены на наличие износа деталей и корректную работу. Трубопроводы должны быть осмотрены на предмет утечек или повреждений. Регулярная проверка гарантирует эффективность работы системы и предотвращает возможные аварии.
Рекомендуется проводить техническое обслуживание насосной станции не менее одного раза в год. Однако, в зависимости от условий эксплуатации, частота обслуживания может быть увеличена. Это позволит предотвратить возможные поломки или снижение эффективности работы системы.
Техническое обслуживание насосной станции проводят специалисты, имеющие опыт в данной области и знание требований производителя. Они производят проверку, чистку и смазку необходимых элементов, а также выполняют необходимые регулировки для обеспечения нормального функционирования насосной станции.
Преимущества использования насосной станции
Насосная станция представляет собой комплексное оборудование, которое позволяет эффективно осуществлять подачу воды или других жидкостей в различные системы и производственные процессы. Она обладает рядом преимуществ, которые делают ее незаменимым элементом в инженерной практике:
1. Автоматизация и удобство использования
Насосная станция автоматически контролирует подачу жидкости в систему, осуществляет ее регулировку и поддержание заданных параметров. Это упрощает и автоматизирует процесс работы, что позволяет существенно сэкономить время и ресурсы.
2. Высокая производительность и надежность
Насосная станция способна обеспечивать высокую производительность и надежность в работе. Благодаря использованию современных технологий и инженерных решений, она позволяет эффективно перемещать жидкости на большие расстояния и обеспечивать стабильное давление в системе.
3. Экономия энергии и ресурсов
Насосная станция способна оптимизировать расход энергии и ресурсов. Благодаря точному контролю процесса подачи жидкости и автоматической регулировке, она позволяет минимизировать потери и оптимизировать энергопотребление.
В итоге, использование насосной станции позволяет существенно улучшить работу системы подачи жидкости, обеспечить ее стабильность и надежность, а также сократить затраты на энергию и ресурсы. Поэтому она находит широкое применение в различных областях, включая строительство, промышленность, сельское хозяйство и домашнее хозяйство.
Примеры применения насосных станций
Насосные станции широко применяются в различных отраслях и сферах деятельности. Вот некоторые примеры их использования:
- Водоснабжение жилых и коммерческих комплексов.
- Организация системы отопления и водоснабжения в зданиях и сооружениях.
- Использование в промышленности для перекачки и подачи различных жидкостей.
- Автономная система водоснабжения и орошения в сельском хозяйстве.
- Применение в системах охлаждения в промышленности и энергетике.
- Использование насосных станций для поддержания давления в сетях водоснабжения.
- Применение насосных станций для подачи воды в бассейны и искусственные водоемы.
- Организация системы канализации в зданиях и сооружениях.
- Использование в системах очистки воды и сточных вод.
Это лишь некоторые примеры, и насосные станции могут быть применены во многих других сферах, где требуется перекачка жидкостей или поддержание нужного давления в системе.
Вопрос-ответ:
Что такое насосная станция?
Какие функции выполняет насосная станция?
Какие компоненты входят в состав насосной станции?
Как выбрать насосную станцию подходящего типа?
Как осуществляется обслуживание насосной станции?
Что такое насосная станция?
Какие основные компоненты входят в схему насосной станции?
Зачем нужны насосы в схеме насосной станции?
Как происходит управление насосной станцией?
Для чего нужны фильтры в схеме насосной станции?
Видео:
ONI PLR Studio Проект "Насосная станция"
Схема автоматической насосной станции
-
Насос джамбо — самое мощное оборудование для перекачки жидкостей -
Применение насосов в системах водоснабжения — особенности выбора и преимущества -
Как самостоятельно разобрать и собрать водяной насос — подробная инструкция с фото и пошаговая расписка












