План цокольного этажа статьи: «Планирование цокольного этажа вашего дома»
Содержание
- Описание плана цокольного этажа
- Область применения цокольного этажа
- Планирование и дизайн цокольного этажа
- Материалы и конструкции для цокольного этажа
- Освещение и вентиляция цокольного этажа
- Утепление цокольного этажа
- Коммуникации в цокольном этаже
- Особенности отделки цокольного этажа
- Вопрос-ответ:
- Какими элементами может быть оборудован цокольный этаж?
- Какого размера может быть цокольный этаж?
- Можно ли использовать цокольный этаж в жилых помещениях?
- Как можно обеспечить естественное освещение цокольного этажа?
- На какие цели можно использовать цокольный этаж в жилых зданиях?
- Что такое цокольный этаж?
- Какие помещения могут находиться на цокольном этаже?
- Какой может быть план цокольного этажа?
- Видео:
Цокольный этаж здания, также известный как подвал или погреб, является нижним уровнем здания, расположенным ниже уровня земли. Эта часть здания обычно служит для хранения различных вещей, а также выполняет функции технической и бытовой необходимости. План цокольного этажа должен быть проработан до мелочей, чтобы максимально эффективно использовать доступное пространство.
Включение подвала или погреба в план здания может иметь несколько преимуществ. Во-первых, это отличное место для хранения различных материалов, инструментов и принадлежностей, которые необходимы в повседневной жизни, но не требуют постоянного доступа. Второе преимущество — это возможность размещения технических коммуникаций и систем, таких как система отопления, вентиляции, кондиционирования воздуха и электроснабжения, что позволяет освободить ценное пространство на основных этажах.
Планирование цокольного этажа должно быть продуманным и основываться на конкретных потребностях и требованиях здания. В разных зданиях функциональное назначение цокольного этажа может различаться. Например, в жилом здании, цокольный этаж может использоваться для создания комнат отдыха, мастерских или тренажерного зала. В коммерческом здании этот уровень может быть выделен под магазины, склады или офисные помещения.
Описание плана цокольного этажа
Цокольный этаж здания представляет собой основной уровень подземного пространства, расположенного под основным зданием. На данном этаже находятся различные помещения и комнаты, предназначенные для различных функций и нужд.
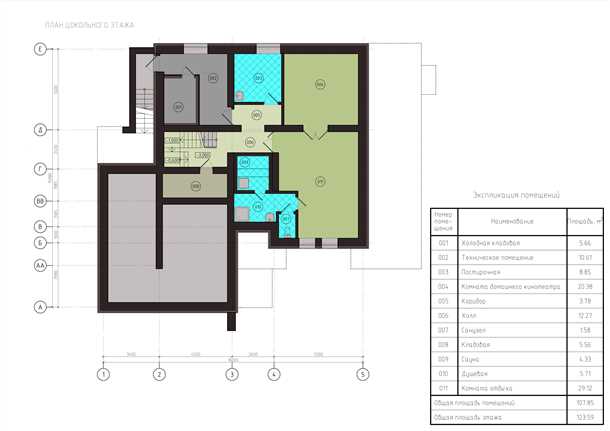
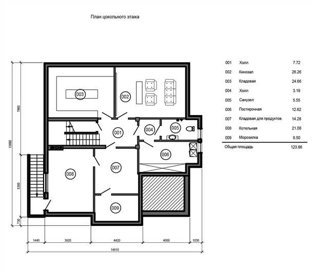
План цокольного этажа включает в себя следующие помещения:
| № | Наименование | Размеры (в метрах) | Назначение |
|---|---|---|---|
| 1 | Лифтовая холл | 6х4 | Помещение, где установлены лифты для перевозки людей и грузов между этажами. |
| 2 | Техническое помещение | 4х3 | Помещение, предназначенное для размещения оборудования, необходимого для работы здания. |
| 3 | Конференц-зал | 10х8 | Большая комната, предназначенная для проведения конференций, собраний и презентаций. |
| 4 | Склад | 12х6 | Помещение, предназначенное для хранения различных материалов, инструментов и оборудования. |
| 5 | Кабинет охраны | 5х4 | Помещение, где располагается персонал, отвечающий за безопасность и контроль доступа в здание. |
| 6 | Столовая | 8х6 | Комната, где персонал может провести обеденный перерыв и получить питание. |
| 7 | Санузел | 3х2 | Помещение, предназначенное для удовлетворения естественных потребностей. |
Это лишь некоторые из помещений, которые могут быть на цокольном этаже здания. Расположение и назначение помещений могут варьироваться в зависимости от конкретных потребностей и проекта.
Область применения цокольного этажа
Область применения цокольного этажа включает в себя:
- Подвальное помещение. Цокольный этаж может быть использован как подвальное помещение, предоставляя дополнительное пространство для хранения, технических коммуникаций или других целей.
- Бытовые нужды. Цокольный этаж может быть приспособлен под различные бытовые нужды, такие как прачечная, подсобное помещение, гараж или мастерская.
- Коммерческое использование. Цокольный этаж может быть использован под коммерческие цели, как офисное пространство, магазин или ресторан. Это может быть выгодным решением для малого бизнеса.
- Развлекательное пространство. Цокольный этаж может быть преобразован в развлекательное пространство, такое как кинозал, бильярдная комната, тренажерный зал или игровая комната.
- Жилая зона. Цокольный этаж может быть использован как отдельная жилая зона, например, для проживания семьи или сдачи в аренду.
Цокольный этаж является гибким пространством, которое может быть адаптировано под различные потребности. Он позволяет эффективно использовать доступное пространство здания и предоставляет возможности для различных видов деятельности.
Планирование и дизайн цокольного этажа
1. Анализ потребностей
Перед тем как приступить к планированию и дизайну цокольного этажа, необходимо провести анализ потребностей. Определите, какое назначение должен иметь этот уровень: может быть, это будет дополнительная спальня, гостевая комната, кабинет, спортзал или хранилище.
Учтите также потребности жильцов или работников, которые будут пользоваться цокольным этажом. Например, если вы хотите создать спортзал, необходимо обеспечить достаточное освещение и вентиляцию, а также установить специальное оборудование.
2. Учет технических требований
При планировании цокольного этажа необходимо учесть технические требования, такие как электро- и водоснабжение, вентиляция и отопление. Обратитесь к специалистам, чтобы убедиться, что цокольный этаж соответствует всем нормам безопасности и комфорта.
Также учтите доступность цокольного этажа. Если это будет дополнительное жилое пространство, не забудьте организовать удобный и безопасный вход и выход, а также обеспечить доступ к воде и санитарным узлам.
3. Создание функциональных зон
Цокольный этаж можно организовать в виде различных функциональных зон. Разделите пространство на зоны в зависимости от его назначения. Например, создайте зону отдыха или спальню, рабочую зону или зону для занятий спортом.
Для создания функциональных зон используйте различные методы, такие как использование перегородок, шкафов или мебели. Это поможет создать комфортное и эргономичное пространство.
Не забудьте также об удобной мебели и хранении. Разместите шкафы, полки и ящики, чтобы обеспечить достаточное пространство для хранения вещей.
Важно: При планировании и дизайне цокольного этажа учитывайте его особенности, такие как низкая высота потолков и ограниченное естественное освещение. Используйте светлые оттенки и стратегически размещенные источники света, чтобы сделать пространство более просторным и светлым.
Также обратите внимание на вентиляцию и уровень влажности, чтобы избежать проблем с конденсатом и плесенью. Обратитесь к специалистам для проведения соответствующих работ и обеспечения необходимых условий.
Создание правильного плана и дизайна цокольного этажа позволит вам максимально использовать потенциал этого пространства. Поместите все необходимые функциональные зоны, учитывая потребности пользователей и технические требования. Не забудьте также об организации удобного и безопасного доступа, хранении и освещении.
Материалы и конструкции для цокольного этажа
Для возведения цокольного этажа могут использоваться различные материалы и конструкции, в зависимости от предполагаемой высоты этажа, его функционального назначения и архитектурного решения.
Кирпич – один из самых популярных материалов для возведения цокольных этажей. Кирпичные стены обладают высокой прочностью и долговечностью, хорошо сохраняют тепло и являются надежной защитой от влаги и воздействия окружающей среды.
Дерево – еще один часто используемый материал для цокольных этажей. Наличие деревянных элементов придает зданию особый шарм и естественность. Для придания дереву дополнительной прочности и защиты от гниения применяются специальные пропитки и лаки.
Бетон и железобетон – одни из самых прочных материалов, которые позволяют возведение высоких и многоэтажных цокольных этажей. Бетонные и железобетонные конструкции обладают отличной огнестойкостью и устойчивостью к влаге.
Стекло – современное и стильное решение для оформления цокольного этажа. Применение стеклянных конструкций позволяет создать впечатление развеселости и легкости, а также обеспечить достаточное количество естественного света внутри помещения.
Выбор материалов и конструкций для цокольного этажа зависит от множества факторов, таких как бюджетное ограничение, предпочтения в эстетическом оформлении, наличие нужных технических характеристик и др. Важно учесть все эти факторы при проектировании и строительстве цокольного этажа, чтобы достичь оптимального сочетания функциональности, надежности и внешней привлекательности.
Освещение и вентиляция цокольного этажа
Освещение и вентиляция цокольного этажа играют важную роль в обеспечении комфортных условий пребывания в данном помещении. Правильное освещение и эффективная вентиляция помогут предотвратить появление плесени, улучшить воздухообмен и обеспечить достаточную яркость для безопасности.
Освещение
Для обеспечения достаточной яркости на цокольном этаже рекомендуется использовать несколько источников света. Главный источник света следует разместить по центру помещения или в зоне, где он будет освещать наиболее используемую площадь. Дополнительные источники света, такие как настольные лампы или точечные светильники, можно использовать для создания акцентной подсветки или мягкого освещения в отдельных уголках.
Важно обратить внимание на цвет света. Натуральный белый свет предпочтителен для создания комфортной и естественной атмосферы, однако можно использовать и другие оттенки света в зависимости от предпочтений и стиля интерьера.
Вентиляция
Эффективная вентиляция цокольного этажа поможет улучшить качество воздуха в помещении и предотвратить появление неприятных запахов, плесени и конденсации. В качестве основной системы вентиляции можно использовать приточно-вытяжную вентиляцию. Для поддержания постоянной циркуляции воздуха рекомендуется установить вентиляционные решетки или вытяжные вентиляторы в стенах или окнах.
Важно также обратить внимание на возможность естественной вентиляции через окна или французские двери. Регулярное проветривание поможет удалить загрязненный воздух и обеспечить свежий поток кислорода.
Наличие дополнительной системы кондиционирования воздуха также может быть важным фактором для поддержания комфортных условий в цокольном этаже. Кондиционеры помогут поддерживать постоянную температуру и уровень влажности в помещении.
Таким образом, правильное освещение и эффективная вентиляция цокольного этажа являются неотъемлемой частью обеспечения комфортных условий пребывания в данном помещении. Они помогут предотвратить возникновение проблем с влажностью, плесенью и неприятными запахами, а также создадут уютную атмосферу для проживания или работы.
Утепление цокольного этажа
Выбор утеплителя
При выборе материала для утепления цокольного этажа необходимо учитывать ряд факторов:
- Коэффициент теплопроводности материала — чем он ниже, тем лучше будет обеспечена теплоизоляция здания.
- Гигроскопичность материала — важно выбрать материал с низкой влагопоглощающей способностью, чтобы исключить появление плесени и грибка.
- Прочность и долговечность — утеплитель должен быть достаточно прочным и долговечным для надежной защиты цокольного этажа.
Защитная гидроизоляция
Помимо утеплителя, необходимо предусмотреть защитную гидроизоляцию для цокольного этажа. Гидроизоляционный слой защищает стены от проникновения влаги из почвы и подземного пространства. При выборе гидроизоляционного материала следует учитывать его стойкость к воздействию влаги и стабильность во времени.
Важным этапом при утеплении цокольного этажа является установка системы дренажа. Дренажные системы предотвращают скопление воды вокруг фундамента и способствуют отводу излишней влаги.
При утеплении цокольного этажа также необходимо учесть правильное устройство вентиляционных отверстий или системы принудительной вентиляции. Это поможет предотвратить образование конденсата и сырости внутри помещений.
Коммуникации в цокольном этаже
Цокольный этаж здания отводится под размещение коммуникационных систем, которые обеспечивают непрерывную работу остальных этажей. В цокольном этаже располагаются следующие коммуникационные элементы:
- Электрические щитки и распределительные панели – обеспечивают электроснабжение всего здания и распределение электрической энергии по этажам и помещениям.
- Телефонные коммутационные шкафы и оборудование связи – обеспечивают доступ к телефонным линиям и коммутацию телефонных сетей.
- Кабельные каналы – предназначены для прокладки коммуникационных кабелей, таких как сетевой, телефонный, коаксиальный и другие, нужные для передачи данных и связи.
- Помещения для серверов – предназначены для размещения серверов и оборудования для работы сетевой инфраструктуры, таких как коммутаторы, маршрутизаторы и другие устройства.
- Пожарная и охранная сигнализация – установка датчиков дыма, датчиков движения, кнопок тревоги и системы видеонаблюдения обеспечивают безопасность здания и предупреждают об аварийных ситуациях.
Коммуникации в цокольном этаже играют важную роль в обеспечении эффективной работы здания и поддержания безопасности. Регулярная проверка и обслуживание коммуникационных систем помогает избежать проблем и сбоев, что позволяет сохранить плавность работы всего здания.
Особенности отделки цокольного этажа
1. Влажность и изоляция
Цокольные этажи обычно имеют повышенную влажность, поэтому соответствующая изоляция играет важную роль в поддержании комфортных условий. Рекомендуется использовать гидроизоляционные материалы для защиты от проникновения влаги снаружи и предотвращения появления плесени и грибка внутри помещения.
2. Утепление
Цокольные этажи могут быть подвержены холоду, особенно в зимнее время. Поэтому важно обеспечить достаточную степень утепления стен и пола. Это может быть достигнуто через использование специальных утеплителей и многокамерных стеклопакетов.
3. Освещение
Цокольные этажи обычно имеют меньше естественного света, поэтому освещение играет важную роль в создании комфортной атмосферы. Рекомендуется использование светильников с яркими лампами, а также светлое цветовое решение для отделки стен и потолка.
4. Материалы отделки
При выборе материалов для отделки цокольного этажа следует учитывать их практичность и прочность. Подходящими вариантами могут быть плитка, ламинат или влагостойкая краска, которые легко моются и сохраняют свой первоначальный вид в условиях повышенной влажности.
5. Вентиляция
Цокольные этажи нуждаются в хорошей системе вентиляции для поддержания свежего воздуха и отвода влаги. Рекомендуется установить систему вытяжки и проветривать помещение регулярно.
Учитывая эти особенности, отделка цокольного этажа должна быть тщательно спланирована и выполнена квалифицированными специалистами, чтобы создать комфортные и безопасные условия для его использования.










